Реализация объекта недвижимости приостановлена

Информация о квартире

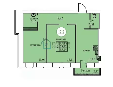
64.0 м2
Площадь
2
Комнаты
1
Этаж
5
Этажность

Дополнительная информация

Тип дома
кирпичный
Развернуть

2-к кв. Ярославская область, Ярославский муниципальный округ, д. ...

Продаётся 2-комнатная квартира в строящемся доме (Дом 3), срок сдачи: III-кв. 2025, общей площадью 64.9 кв.м., на 1 этаже. Жилой комплекс Чайка от застройщика CG DEVELOPMENT в деревне Мостец Ярославской области.

Читать полностью

    Реализация объекта недвижимости приостановлена

    Не нашли подходящего объявления?

    Оставьте заявку, и наши риэлторы подберут квартиру в новостройке в районе Мостеца

    (0)