Реализация объекта недвижимости приостановлена

Информация о квартире

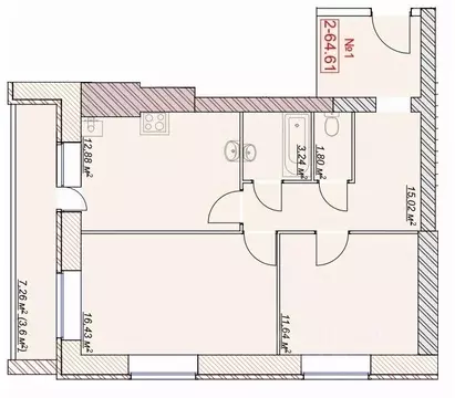
58.0 м2
Площадь
2
Комнаты
2
Этаж
5
Этажность

Дополнительная информация

Тип дома
кирпичный
Развернуть

2-к кв. Ярославская область, Ярославский муниципальный округ, пос. ...

Продаётся 2-комнатная квартира в строящемся доме (Миниполис строение 3), срок сдачи: II-кв. 2027, общей площадью 58.68 кв.м., на 2 этаже. Жилой комплекс Миниполис от застройщика Специализированный застройщик МД-Строй в поселке Красный Бор Ярославского района.

Читать полностью

    Реализация объекта недвижимости приостановлена

    Не нашли подходящего объявления?

    Оставьте заявку, и наши риэлторы подберут квартиру в новостройке в районе Красного Бора

    (0)