Реализация объекта недвижимости приостановлена

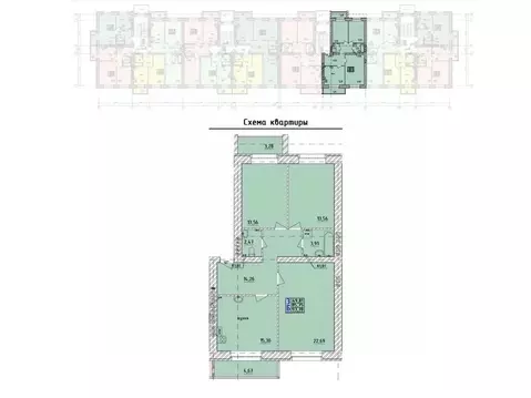
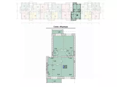
Информация о квартире

62.0 м2
Площадь
36.0 м2
Жилая
10.0 м2
Кухня
2
Комнаты
3
Этаж
4
Этажность

Дополнительная информация

Тип дома
кирпичный
Развернуть

2-к кв. Ярославская область, Ярославский муниципальный округ, пос. ...

2-комнатная квартира 62,2 кв.м. удобной планировки в новом жилом комплексе в Карачихе .ВЫБОР ЭТАЖА И ПЛАНИРОВКИ Подходит под семейную ипотеку от 6 Дом сдан.Возможность ПЕРЕПЛАНИРОВКИ (просторная кухня-гостиная + 2 изолированные спальни)ПРЕИМУЩЕСТВА ПОКУПКИ:*дом кирпичный, 4-х этажный* малоэтажная застройка*индивидуальное поквартирное отопление (низкие коммунальные платежи, всегда есть горячая вода)* панорамное остекление* все готово под финишную отделку - отличная возможность сделать ремонт на свой вкус * установлена качественная входная дверь* видеонаблюдение, домофон* во дворе дома много парковочных мест - всегда найдется место для парковки Вашего автомобиляУСЛОВИЯ ПОКУПКИ:* экскурсия на объект* полное юридическое сопровождение* без комиссии для покупателя

Читать полностью

    Реализация объекта недвижимости приостановлена

    Не нашли подходящего объявления?

    Оставьте заявку, и наши риэлторы подберут квартиру в новостройке в районе Карачихи

    (0)