332 500 Р 4 370 $ или 3 680

Информация об помещении

2
Этаж

Состояние и оснащение

Количество этажей
2
Развернуть
Агент
+7 (915) 980-11-08
Начать чат с агентом

Помещение свободного назначения в Ярославская область, Ярославль ул. ...

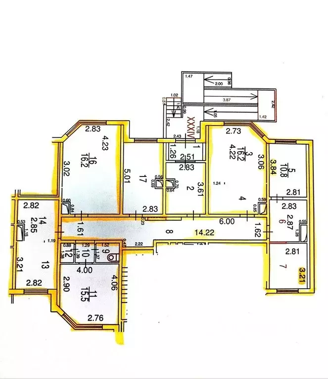
ОТ СОБСТВЕННИКА. БЕЗ КОМИССИИ для арендатора.* Работаем без выходных и праздников. Звоните с 10:00 до 20:00 *Сдам помещение с отдельным входом на производственно-складской базе рядом с Суздальским шоссе.Адрес: ул. Кривова, 1 (второй этаж, грузовой лифт).Назначение: производство, склад, сфера торговли и услуг. Характеристики помещения:Общая площадь 950 кв. м. В этом и в соседнем зданиях есть еще несколько помещений 100-350 кв. м.Отопление - индивидуальное газовое; водоснабжение и канализация - центральные; санузел.Электричество 3 фазы, 30 кВт, с возможностью увеличения.Высота потолков 2,7 м.Охранно-пожарная сигнализация, интернет, видеонаблюдение.Доступ в помещение 24/7.Возможна установка вывески на фасаде.Арендодатель - ООО, ИП. Вид аренды - прямая.Срок аренды: 11 месяцев с пролонгацией или долгосрочный договор (при долгосрочном договоре оплата регистрации за счет арендатора).Арендные каникулы обсуждаются индивидуально.Оплата: Аренда + коммунальные платежи (электричество и водоснабжение - по счетчикам).Преимущества:помещение на производственно-складской базе в 250 м от Суздальского шоссе;база расположена в центре микрорайона, территория закрытая и охраняемая;удобный подъезд на автомобиле с Суздальского шоссе и ул. Пожарского;до ближайших остановок общественного транспорта 300-600 м, 5 маршрутов;вокруг большое количество частных, а также малоэтажных жилых домов;в 500 м от базы вдоль Суздальского ш. находятся несколько многоэтажных жилых домов (9-18 этажей);грузовой лифт, широкие двери;территория позволяет грузовым автомобилям удобно маневрировать и подъезжать к местам погрузки-разгрузки;возможность выбрать наиболее подходящее помещение из нескольких;отличное состояние помещений.ЗВОНИТЕ Арт.

Читать полностью
    Позвонить Написать
    332 500 Р4 370 $ или 3 680
    Агент
    +7 (915) 980-11-08
    Начать чат с агентом
    Похожие предложения
    Помещение свободного назначения в Ярославская область, Ярославль ул. ... - Фото 1
    Помещение свободного назначения в Ярославская область, Ярославль ул. ... - Фото 2
    Арт.. Для данной площадки мы выделили 3 агента: всегда быстрый показ, оперативная информация и полная осведомленность о площадях.Группа Компаний Метроеализует в аренду помещение свободного назначения на территории бывшей табачной фабрики — одного из...
    • 2/2 эт.
    320 000 Р
    Агент
    +7 (917) Показать номер
    Посмотреть контакты
    Помещение свободного назначения в Ярославская область, Ярославль пл. ... - Фото 1
    Помещение свободного назначения в Ярославская область, Ярославль пл. ... - Фото 2
    Арт.. Предлагаем в аренду помещение общей площадью от 220 до 600 кв. метров Расположенное на 2 этаже общественного центра Волков Плаза Большие панорамные окна с видом на Волковский театр Есть лифт для разгрузки -------------------------------------------------...
    • 2/4 эт.
    330 000 Р
    Агент
    +7 (917) Показать номер
    Посмотреть контакты
    Помещение свободного назначения в Ярославская область, Ярославль пл. ... - Фото 1
    Помещение свободного назначения в Ярославская область, Ярославль пл. ... - Фото 2
    Готовы создать новую точку притяжения в самом атмосферном бизнес-центре Ярославля?От рассветных бизнес-завтраков до ночных вечеринок — ваше пространство для ярких решений в сердце индустрии развлечений.Помещение 220 м на 2 этаже БЦ Волков Плаза (пл....
    • 2/4 эт.
    330 000 Р
    Агент
    +7 (910) Показать номер
    Посмотреть контакты
    Помещение свободного назначения в Ярославская область, Тутаев ... - Фото 1
    Помещение свободного назначения в Ярославская область, Тутаев ... - Фото 2
    ОТ СОБСТВЕННИКА. БЕЗ КОМИССИИ. * Работаем без выходных и праздников. Звоните с 10:00 до 20:00 * Сдам помещение на первой линии ул. Советская в г. ТутаевНапротив здания большой спальный район.Рядом - магазин строй,хозтоваров.Характеристики помещения:Отдельный...
    • 1/1 эт.
    321 000 Р
    Агент
    +7 (915) Показать номер
    Посмотреть контакты
    Помещение свободного назначения в Москва Рождественская ул., 21к1 (161 ... - Фото 1
    Помещение свободного назначения в Москва Рождественская ул., 21к1 (161 ... - Фото 2
    Лучшее предложение у метро Некрасовка Сдаётся помещение свободного назначения 161 кв.м. на первом этаже жилого дома, на первой линии в 7 минутах пешком от метро Некрасовка. Прямая аренда от собственника, без комиссии. Предоставляется Юр. адрес. Арендные...
    • 1/19 эт.
    322 000 Р
    Агент
    +7 (916) Показать номер
    Посмотреть контакты

    Не нашли подходящего объявления?

    Оставьте заявку, и наши риэлторы подберут псн в районе Ярославля

    (0)