225 000 Р 2 920 $ или 2 470

Информация об помещении

1
Этаж

Состояние и оснащение

Количество этажей
9
Развернуть
Агент
+7 (917) 503-43-24
Начать чат с агентом

Помещение свободного назначения в Ярославская область, Ярославль ...

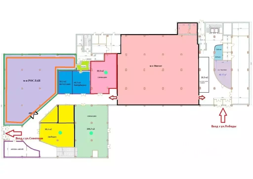
Арт.. Предлагаем в аренду 250 м2 помещения свободного назначения на 1-ой линии одной из самых оживленных магистралей г. Ярославля на пр-те Машиностроителейг. Ярославль, Машиностроителей, д.40Плoщaдь: 250 м2Потолки 3.2 мМощность 70 кВт с возможностью увеличения1-ый этaж жилого дома, сан.узел в помещенииСделан ремонт, отделка white-boxОтдельный вход, 1-ая линияЯкорные арендаторы рядом (Магнит, Аптеки Апрель и Витта ), которые дают дополнительный поток клиентовВозможность получения арендных каникул до 30 днейПочeму это помeщение — ваша следующaя тoчка рocта:1-ая линия одной из самых оживленных магистралей города около остановок — поток людeй обeспeчeн 24/7Можно переделать планировку под свой вид деятельностиРядом работают якорные арендаторы: Магнит, аптеки Апрель , ВиттаКому подойдёт:Любой бизнес — розничная торговля, сфера услугЗвоните прямо сейчас, чтобы договориться о просмотре Или напишите в чат — ответим оперативно.——————Фиксируем звонки в режиме 24/7, для Вашего удобства работает колл-центр/м2

Читать полностью
    Позвонить Написать
    225 000 Р2 920 $ или 2 470
    Агент
    +7 (917) 503-43-24
    Начать чат с агентом
    Похожие предложения
    Помещение свободного назначения в Ярославская область, Ярославль ... - Фото 1
    Помещение свободного назначения в Ярославская область, Ярославль ... - Фото 2
    Арт.. Группа Компаний Метроеализует в аренду тёплое помещение под прозвоство/склад, расположенное на ул. АвиаторовКлючевые параметры:-Общая площадь - 430 кв. м в том числе: - Производственно/складская - 355м. кв, ...
    • 1/1 эт.
    233 750 Р
    Агент
    +7 (917) Показать номер
    Посмотреть контакты
    Помещение свободного назначения в Ярославская область, Ярославль ул. ... - Фото 1
    Помещение свободного назначения в Ярославская область, Ярославль ул. ... - Фото 2
    Арт.. Предлагаем в аренду помещение 391 кв. м. на 1ом этаже в торгово/деловом-центре по адресу: Ярославль, ул. Победы д. 6 в ТЦ Дом Моды .В сумме аренды указана первоначальная льготная стоимость. Помещение свободно с 1 февраля 2026 г. Помещение расположено...
    • 1/6 эт.
    234 600 Р
    Агент
    +7 (917) Показать номер
    Посмотреть контакты
    Помещение свободного назначения в Ярославская область, Ярославль ул. ... - Фото 1
    Помещение свободного назначения в Ярославская область, Ярославль ул. ... - Фото 2
    Арт.. Группа компаний Метро предлагает в аренду производственные площади по адресу 1-я Портовая улица, 6.Параметры:-общая площадь 500м2-2 этаж, Грузовой лифт -охрана;-удобная транспортная доступность;-отопление - газ (обсуждается индивидуально);-электричество...
    • 2/4 эт.
    220 000 Р
    Агент
    +7 (917) Показать номер
    Посмотреть контакты
    Помещение свободного назначения в Ярославская область, Ярославль ... - Фото 1
    Помещение свободного назначения в Ярославская область, Ярославль ... - Фото 2
    ОТ СОБСТВЕННИКА. БЕЗ КОМИССИИ ДЛЯ АРЕНДАТОРА.* Работаем без выходных и праздников. Звоните с 10:00 до 20:00 *Сдам помещение с отдельным входом на пр-те Ленина.Адрес: пр-т Ленина, 8Б (цокольный этаж, отдельный вход со двора).Назначение: клуб, кафе, торговля,...
    • -1/2 эт.
    221 000 Р
    Агент
    +7 (915) Показать номер
    Посмотреть контакты
    Помещение свободного назначения в Ярославская область, Ярославль ул. ... - Фото 1
    Помещение свободного назначения в Ярославская область, Ярославль ул. ... - Фото 2
    Арт.. Предлагается в аренду производственно-складское помещение по адресу: Блюхера, 21 Клюевые параметры: - 450 метров;- Первый этаж;- Высота потолка от 3, 2;- Площади от 50 до 500 метров.Коммуникации:- Канализация центральная;- Отопление центральноеИнфраструктура...
    • 1/2 эт.
    225 000 Р
    Агент
    +7 (917) Показать номер
    Посмотреть контакты

    Не нашли подходящего объявления?

    Оставьте заявку, и наши риэлторы подберут псн в районе Ярославля

    (0)