462 000 Р 5 710 $ или 4 920

Информация о помещении и здании

1
Этаж
5
Этажность
Развернуть
Агент
+7 (917) 503-43-24
Начать чат с агентом

Офис в Ярославская область, Ярославль ул. Ушинского, 40/2 (210 м)

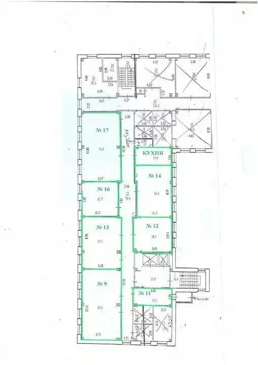
Арт.. Предлагается к аренде коммерческое помещение с витринной группой на ул. Свободы Траффиковая улица, исторический центр, объект культурного наследия.Характеристики помещения:- Помещение после банка 210 м кв.- Отдельнае входная группа с ул. Свободы.- Высота потолков: 3, 4 м (до подвесного, там запас).- Электрическая мощность: 90 кВт (будет 150 кВт).Планировка и доступ: - Входная группа с улицы Свободы.- Запасной и пожарный выходы на внутреннюю территорию.Инфраструктура: - Центральное водоснабжение (холодная вода).- Горячая вода через бойлеры в санузлах.- Собственный теплоузел для экономии на отоплении.Оснащение:- Пожарное оборудование, сигнализация, СКУД.- Освещение.- Частичная система видеонаблюдения.- Система кондиционирования и вентиляции (кондиционер в каждом кабинете).- Качественный базовый ремонт (ранее использовалось как банк).На внутренней территории имеется парковка (платная). АРЕНДА------------------------------------------------- -------------Без комиссии, аренда от собственника ------------------------------------------------- -------------ГК Метро - лидер рынка коммерческой недвижимости Ярославля. У нас самый большой портфель недвижимости и наибольшая выгрузка рекламы на отраслевых площадках.------------------------------------------------- -------------1. Больше информации по телефону и в форме чата.2. По запросу предоставим расширенный пакет фотографий, поэтажные планы и техническую документацию.3. Для иногородних клиентов оперативно покажем объект по видеосвязи.4. Приглашаем посредников к сотрудничеству на выгодных условиях.5. Если этот объект не понравился по фотографиям и описанию - обращайтесь, предложим альтернативу.6. Фиксируем звонки в режиме 24/7, для Вашего удобства работает контакт-центр.

Читать полностью
    Позвонить Написать
    462 000 Р5 710 $ или 4 920
    Агент
    +7 (917) 503-43-24
    Начать чат с агентом
    Похожие предложения
    Офис в Ярославская область, Ярославль ул. Ушинского, 40/2 (206 м) - Фото 1
    Офис в Ярославская область, Ярославль ул. Ушинского, 40/2 (206 м) - Фото 2
    1-й этаж, всего 5 этажей

    Арт.. Предлагается к аренде коммерческое помещение с витринной группой на ул. Свободы Траффиковая улица, исторический центр, объект культурного наследия.Характеристики помещения:- Помещение после банка 206 м кв.- Отдельнае входная группа с ул. Свободы.-...
    • 1/5 эт.
    462 000 Р
    Агент
    +7 (917) Показать номер
    Посмотреть контакты
    Офис в Ярославская область, Ярославль Силикатное ш., 5 (1053 м) - Фото 1
    Офис в Ярославская область, Ярославль Силикатное ш., 5 (1053 м) - Фото 2
    1-й этаж, всего 2 этажа

    Арт.. ГК Метро предлагает офисные помещения в долгосрочную аренду. Помещения готовы к пользованию, открытая парковка, рядом открывается столовая, в доступности Московский проспект и вся необходимая инфраструктура. условия просмотра обсуждаются индивидуально....
    • 1/2 эт.
    467 620 Р
    Агент
    +7 (917) Показать номер
    Посмотреть контакты
    Офис в Новосибирская область, Новосибирск Академгородок мкр, ул. ... - Фото 1
    Офис в Новосибирская область, Новосибирск Академгородок мкр, ул. ... - Фото 2
    5-й этаж, всего 8 этажей

    Внимание Предлагается в аренду современное офисное помещение в деловом центре Академгородка. Это идеальная локация для крупной IT-компании:- Прямо через дорогу - Технопарк Новосибирского Академгородка (с его резидентами, мероприятиями, лабораториями)....
    • 5/8 эт.
    460 000 Р
    Агент
    +7 (913) Показать номер
    Посмотреть контакты
    Офис в Москва Барклая ул., 6С5 (124 м) - Фото 1
    Офис в Москва Барклая ул., 6С5 (124 м) - Фото 2
    6-й этаж, всего 8 этажей

    Сдается офисное помещение на 6 этаже в бизнес-центре Барклай Парк, В класса, который находится по адресу: ул. Барклая, д. 6, стр. 3. Без комиссии для Арендатора ЛОКАЦИЯ: Пешая доступность от станций метро Парк Победы, Фили. Удобный выезд на ТТК.ПОМЕЩЕНИЕ:...
    • 6/8 эт.
    450 000 Р
    Агент
    +7 (989) Показать номер
    Посмотреть контакты
    Офис в Санкт-Петербург Большая Разночинная ул., 14 (235 м) - Фото 1
    Офис в Санкт-Петербург Большая Разночинная ул., 14 (235 м) - Фото 2
    3-й этаж, всего 5 этажей

    Бизнес-центр расположен в непосредственной близости к станции метро Чкаловская и имеет превосходную транспортную развязку, что делает его доступным для клиентов и сотрудников вашей компании. Развитая инфраструктура района.Налоговая: 25. Лифты: Нет. Вентиляция:...
    • 3/5 эт.
    470 000 Р
    Агент
    +7 (933) Показать номер
    Посмотреть контакты

    Не нашли подходящего объявления?

    Оставьте заявку, и наши риэлторы подберут офис в районе Ярославля

    (0)