300 000 Р 3 700 $ или 3 170

Информация о помещении и здании

1
Этаж
5
Этажность
Развернуть
Агент
+7 (936) 709-40-32
Начать чат с агентом

Офис в Ярославская область, Ярославль ул. Ушинского, 40/2 (120 м)

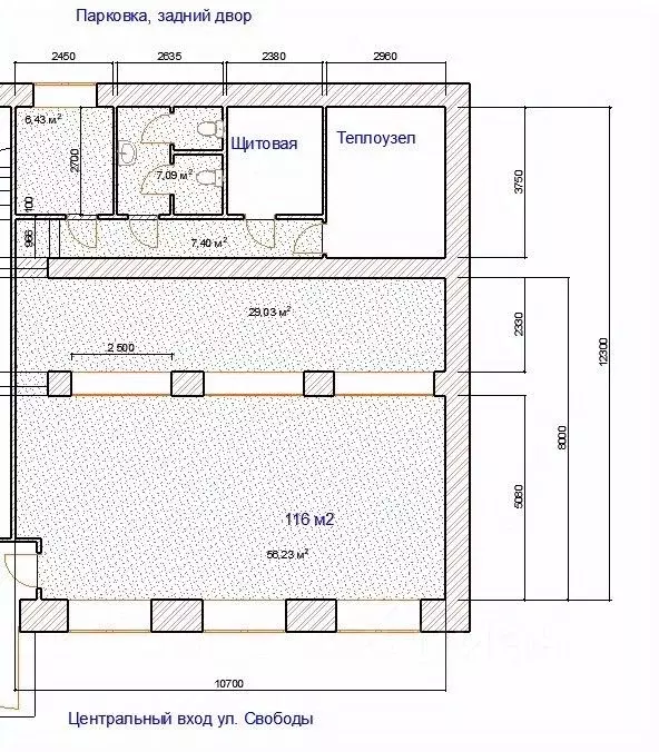
Арт.. Предлагается к аренде коммерческое помещение с витринной группой на ул. Свободы МОЖНО АРЕНДОВАТЬ ВСЕ ВМЕСТЕ СО ВТОРЫМ ЭТАЖОМ Траффиковая улица, исторический центр, объект культурного наследия.Характеристики помещения:- 1 этаж: 180 + 120 (126) м с отдельными входными группами с ул. Свободы.- Высота потолков: 3, 5 м (до подвесного, там запас).- Электрическая мощность: 90 кВт (будет 150 кВт).Планировка и доступ: - Две входные группы с улицы Свободы.- Запасной и пожарный выходы на внутреннюю территорию.Инфраструктура: - Центральное водоснабжение (холодная вода).- Горячая вода через бойлеры в санузлах.- Собственный теплоузел для экономии на отоплении.Оснащение:- Пожарное оборудование, сигнализация, СКУД.- Освещение.- Частичная система видеонаблюдения.- Система кондиционирования и вентиляции (кондиционер в каждом кабинете).- Качественный базовый ремонт (ранее использовалось под банк).На внутренней территории имеется парковка (платная).К/у оплачивает арендатор. Можно арендовать 300 или 180 и 120 м кв. отдельно. АРЕНДА------------------------------------------------- -------------Без комиссии, аренда от собственника ------------------------------------------------- -------------ГК Метро - лидер рынка коммерческой недвижимости Ярославля. У нас самый большой портфель недвижимости и наибольшая выгрузка рекламы на отраслевых площадках.------------------------------------------------- -------------1. Больше информации по телефону и в форме чата.2. По запросу предоставим расширенный пакет фотографий, поэтажные планы и техническую документацию.3. Для иногородних клиентов оперативно покажем объект по видеосвязи.4. Приглашаем посредников к сотрудничеству на выгодных условиях.5. Если этот объект не понравился по фотографиям и описанию - обращайтесь, предложим альтернативу.6. Фиксируем звонки в режиме 24/7, для Вашего удобства работает контакт-центр.

Читать полностью
    Позвонить Написать
    300 000 Р3 700 $ или 3 170
    Агент
    +7 (936) 709-40-32
    Начать чат с агентом
    Похожие предложения
    Офис в Ярославская область, Ярославль ул. Ушинского, 40/2 (120 м) - Фото 1
    Офис в Ярославская область, Ярославль ул. Ушинского, 40/2 (120 м) - Фото 2
    1-й этаж, всего 5 этажей

    Арт.. Предлагается к аренде коммерческое помещение с витринной группой на ул. Свободы МОЖНО АРЕНДОВАТЬ ВСЕ ВМЕСТЕ СО ВТОРЫМ ЭТАЖОМ Траффиковая улица, исторический центр, объект культурного наследия.Характеристики помещения:- 1 этаж: 180 + 120 м с отдельными...
    • 1/5 эт.
    300 000 Р
    Агент
    +7 (936) Показать номер
    Посмотреть контакты
    Офис в Ярославская область, Ярославль ул. Победы, 22 (363 м) - Фото 1
    Офис в Ярославская область, Ярославль ул. Победы, 22 (363 м) - Фото 2
    1-й этаж, всего 2 этажа

    Арт.. Группа компаний Метро предлагает офисные помещения в историческом двухэтажном здании на улице Победы. Это часть территории бывшей Ярославской табачной фабрики — одного из старейших производств города, основанного еще в 1850 году купцом Дунаевым....
    • 1/2 эт.
    300 000 Р
    Агент
    +7 (936) Показать номер
    Посмотреть контакты
    Офис в Москва ул. Земляной Вал, 68/18С5 (90 м) - Фото 1
    Офис в Москва ул. Земляной Вал, 68/18С5 (90 м) - Фото 2
    1-й этаж, всего 4 этажа

    БЕЗ КОМИССИИ Особняк класса B. Сдаётся под офис блок с санузлом на первом этаже площадью 90 кв.м. Стандартная офисная отделка. Кондиционер (сплит). Есть охрана.УСН. Улица Земляной Вал, 68/18с5, 5 минут пешком от метро Таганская. ЛОТ 176744
    • 1/4 эт.
    300 000 Р
    Агент
    +7 (939) Показать номер
    Посмотреть контакты
    Офис в Краснодарский край, Краснодар Тихорецкая ул., 6 (250 м) - Фото 1
    Офис в Краснодарский край, Краснодар Тихорецкая ул., 6 (250 м) - Фото 2
    3-й этаж, всего 3 этажа

    Сдаю офисное помещение общей площадью 250 мОт Собственника. Без комиссии- Прикубанский район, район Панорамы- Рядом парк Галицкого- Сделан дорогой качественный ремонт- Удобный подъезд- Район высокой деловой активности- Третий этаж- Большие окна- Удобная...
    • 3/3 эт.
    310 000 Р
    Агент
    +7 (918) Показать номер
    Посмотреть контакты
    Офис в Москва Духовской пер., 17С10 (90 м) - Фото 1
    Офис в Москва Духовской пер., 17С10 (90 м) - Фото 2
    1-й этаж, всего 1 этаж

    Аренда Лофт помещения 90 м2 на 1 этаже Отдельный Вход.Квартал The Loft.Духовской 17.Метро Тульская 6-7 мин пешком.В помещении выполнен качественный ремонт.Отдельный вход.Большие окна.Мини-кухня, с/у.2 кондиционера, Приточно-Вытяжная вентиляция.Помещение...
    • 1/1 эт.
    300 000 Р
    Агент
    +7 (915) Показать номер
    Посмотреть контакты

    Не нашли подходящего объявления?

    Оставьте заявку, и наши риэлторы подберут офис в районе Ярославля

    (0)