135 000 Р 1 670 $ или 1 430

Информация о помещении и здании

2
Этаж
4
Этажность
Развернуть
Агент
+7 (936) 709-40-32
Начать чат с агентом

Офис в Ярославская область, Ярославль ул. Малая Пролетарская, 18А (225 ...

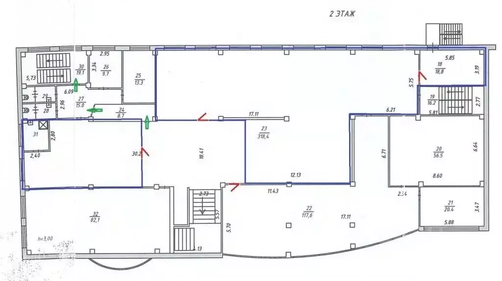
Арт.. Сдаются в аренду офисные помещения на втором этаже административного здания с косметическим ремонтом. Имеется отдельная входная группа с ул. Малая Пролетарская. Текущая планировка отражена на плане помещений. Имеется возможность изменения конфигурации помещений. Пол - плитка. Потолок - армстронг, высота 3 метра. Сан. узел на этаже Отдельный ввод э/э 40 кВт. Парковка на внутренней территории (50 мест) предоставляется арендатору. Аренда от юридического лица, без НДС, отдельно оплачивается электроэнергия (по счетчику). В шаговой доступности столовая для удобства сотрудников. ------------------------------------------------- ------------- Без комиссии, аренда от собственника ------------------------------------------------- ------------- ГК Метро - лидер рынка коммерческой недвижимости Ярославля. У нас самый большой портфель недвижимости и наибольшая выгрузка рекламы на отраслевых площадках. ------------------------------------------------- ------------- 1. Больше информации по телефону и в форме чата. 2. По запросу предоставим расширенный пакет фотографий, поэтажные планы и техническую документацию. 3. Для иногородних клиентов оперативно покажем объект по видеосвязи. 4. Приглашаем посредников к сотрудничеству на выгодных условиях. 5. Если этот объект не понравился по фотографиям и описанию - обращайтесь, предложим альтернативу. 6. Фиксируем звонки в режиме 24/7, для Вашего удобства работает контакт-центр.

Читать полностью
    Позвонить Написать
    135 000 Р1 670 $ или 1 430
    Агент
    +7 (936) 709-40-32
    Начать чат с агентом
    Похожие предложения
    Офис в Ярославская область, Ярославль ул. Полушкина Роща, 23 (240 м) - Фото 1
    Офис в Ярославская область, Ярославль ул. Полушкина Роща, 23 (240 м) - Фото 2
    3-й этаж, всего 4 этажа

    Арт.. Предлагаем в аренду офисное помeщeние кабинетного типа в новом ОСК на Полушкиной Рoще.Главным преимуществом этого помещения является свободная планировка состоящая из 2 зон и безграничная парковка.Основные характеристики помещения:Низкие коммунальные...
    • 3/4 эт.
    145 000 Р
    Агент
    +7 (936) Показать номер
    Посмотреть контакты
    Офис в Ярославская область, Ярославль ул. Большая Октябрьская, 124/15 ... - Фото 1
    Офис в Ярославская область, Ярославль ул. Большая Октябрьская, 124/15 ... - Фото 2
    1-й этаж, всего 5 этажей

    Арт.. С 01. 04. 2025 Сдается торгово-офисное помещение на первом этаже. Общая площадь: 186, 6 кв. м. Потолки 3, 6 м. Адрес: ул. Большая Октябрьская 124/15 Высокий пешеходный и автомобильный трафик. Параметры: - Качественный ремонт. -Кондиционер в каждом...
    • 1/5 эт.
    140 000 Р
    Агент
    +7 (936) Показать номер
    Посмотреть контакты
    Офис в Ярославская область, Ярославль Советская ул., 6/10 (80 м) - Фото 1
    Офис в Ярославская область, Ярославль Советская ул., 6/10 (80 м) - Фото 2
    1-й этаж, всего 4 этажа

    Арт.. ------------------------------------------------- -------------Без комиссии, аренда от собственника ------------------------------------------------- -------------Предлагаем помещение в аренду в историческом центре Ярославля Основные характеристики:-...
    • 1/4 эт.
    150 000 Р
    Агент
    +7 (936) Показать номер
    Посмотреть контакты
    Офис в Ярославская область, Ярославль пл. Труда, 3 (140 м) - Фото 1
    Офис в Ярославская область, Ярославль пл. Труда, 3 (140 м) - Фото 2
    2-й этаж, всего 7 этажей

    Аренда офисных помещений класса А в Бизнес Центре CITYAR TOWERS (без комиссии для Арендатора).Престижный деловой комплекс расположен в центральной части г. Ярославля (Кировский р-н) с развитой инфраструктурой.Площади от 140 до 700 кв.м. свободной планировки...
    • 2/7 эт.
    140 000 Р
    Агент
    +7 (910) Показать номер
    Посмотреть контакты
    Офис в Ярославская область, Ярославль Революционная ул., 13 (140 м) - Фото 1
    Офис в Ярославская область, Ярославль Революционная ул., 13 (140 м) - Фото 2
    1-й этаж, всего 2 этажа

    Арт.. Группа Компаний Метроеализует в аренду в бизнес-центре офис, расположенный в центре Ярославля.Ключевые параметры:-Общая площадь 140 кв. м;-Парковка закрытая;-Домофон;-Кондиционер;-Офисный ремонт;-------------------------------------------------...
    • 1/2 эт.
    130 000 Р
    Агент
    +7 (936) Показать номер
    Посмотреть контакты

    Не нашли подходящего объявления?

    Оставьте заявку, и наши риэлторы подберут офис в районе Ярославля

    (0)