Реализация объекта недвижимости приостановлена

Информация об помещении

1
Этаж

Состояние и оснащение

Количество этажей
3
Развернуть

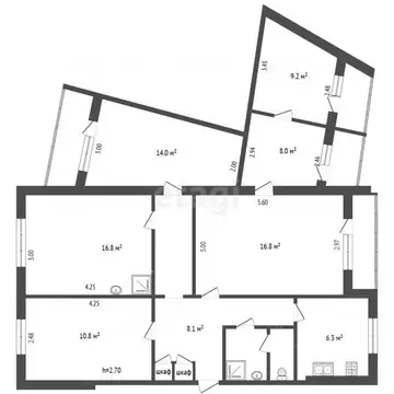
Помещение свободного назначения (71.1 м)

Арт.. ГК Метро предлагает помещение свободного назначения с отдельным входом и закрытой территорией в самом центре города Ярославля.Два собственника.- Отдельный вход- Закрытая территория (возможен въезд на территорию для арендатора)- Санузел + выведенная дополнительно мокрая точка- Кондиционирвоание (сплит)- Высокие потолки 3,3м- Выделено 2 больших кабинета и 2 небольших помещения (комната приема пищи, гардероб, либо так же мини кабинет)Может стать отличным офисом, учебным учреждением либо бьюти салоном.Коммунальные платежи оплачиваются дополнительно. ГК Метро - лидер рынка коммерческой недвижимости Ярославля. У нас самый большой портфель недвижимости и наибольшая выгрузка рекламы на отраслевых площадках. --------------------------------------------------------------1. Больше информации по телефону и в форме чата.2. По запросу предоставим расширенный пакет фотографий, поэтажные планы и техническую документацию.3. Для иногородних клиентов оперативно покажем объект по видеосвязи.4. Приглашаем посредников к сотрудничеству на выгодных условиях.5. Если этот объект не понравился по фотографиям и описанию - обращайтесь, предложим альтернативу.6. Фиксируем звонки в режиме 24/7, для Вашего удобства работает контакт-центр.

Читать полностью

    Реализация объекта недвижимости приостановлена

    Не нашли подходящего объявления?

    Оставьте заявку, и наши риэлторы подберут псн в районе Ярославля

    (0)