21 840 000 Р 280 600 $ или 241 200

Информация об помещении

5
Этаж

Состояние и оснащение

Количество этажей
6
Развернуть
Агент
+7 (910) 826-44-81
Начать чат с агентом

Помещение свободного назначения в Ярославская область, Ярославль ...

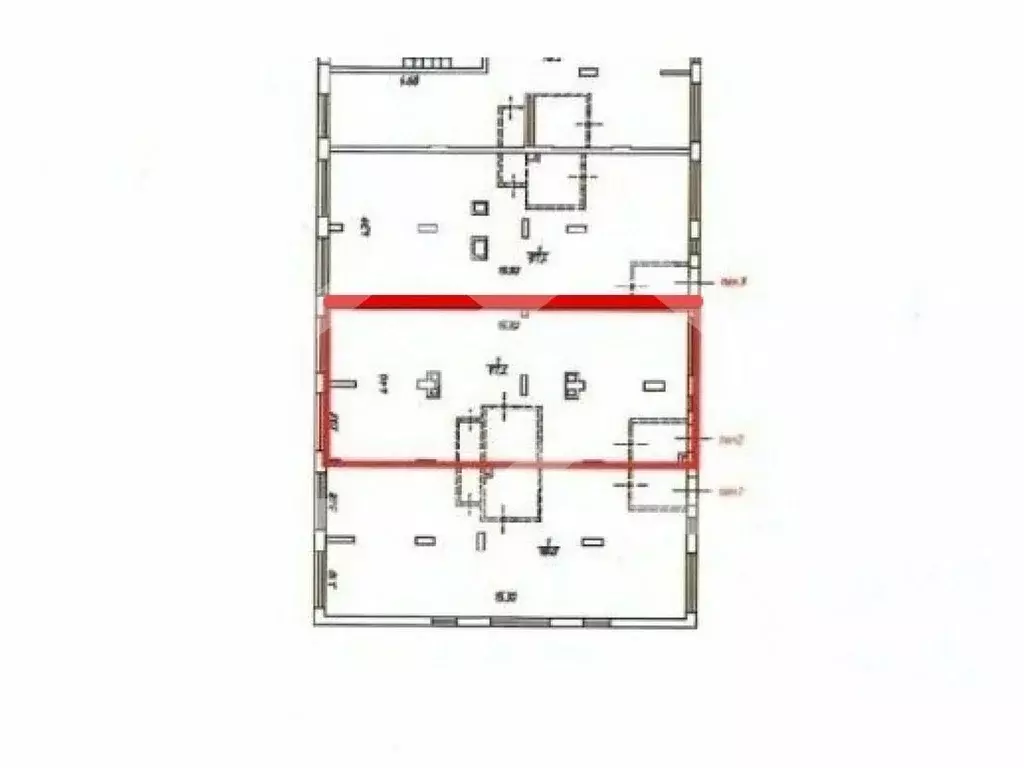
Продается помещение свободного назначения 420 кв.м. в самом центре города пр-т Толбухина, ГСК Центральный-2 , 5 и 6 этаж с обзорной площадкой , круглосуточный заезд на машине прямо на этаж. Центральное водоснабжение и водоотведение, тепло, лимит электроэнергии 10 кВт, оптоволоконный интернет, охрана. Помещение прекрасно подойдет для мастерской, цеха или производства. Всем желающим высылаю план помещения.

Читать полностью
    Позвонить Написать
    21 840 000 Р280 600 $ или 241 200
    Агент
    +7 (910) 826-44-81
    Начать чат с агентом
    Похожие предложения
    Помещение свободного назначения в Ярославская область, Ярославль ... - Фото 1
    Помещение свободного назначения в Ярославская область, Ярославль ... - Фото 2
    ОТ СОБСТВЕННИКА. БЕЗ КОМИССИИ ДЛЯ ПОКУПАТЕЛЯ.* Работаем без выходных и праздников. Звоните с 10:00 до 20:00 *Продам здание в Заволжском районе в 170 м от пр-та Авиаторов.Адрес: Гагаринский пер., 8 (отдельно стоящее здание, один этаж).Назначение: сфера...
    • 1/1 эт.
    21 000 000 Р
    Агент
    +7 (915) Показать номер
    Посмотреть контакты
    Помещение свободного назначения в Ярославская область, Рыбинск ул. ... - Фото 1
    Помещение свободного назначения в Ярославская область, Рыбинск ул. ... - Фото 2
    ПРОДАМ РАССМОТРИМ ВАРИАНТ ПРОДАЖИ ОТДЕЛЬНЫМИ ПОМЕЩЕНИЯМИ кoммepчecкoe пoмещение cвобoдногo нaзначения плoщaдью 133,3 кв. м. пo адpecу: Ярocлaвскaя облaсть г. Pыбинcк ул. Гepцeна д. 58Коммерческое помещение свободного назначения площадью 133,3 кв. м...
    • 1/13 эт.
    21 000 000 Р
    Агент
    +7 (910) Показать номер
    Посмотреть контакты
    Помещение свободного назначения в Москва Дмитровское ш., 169К3 (128 м) - Фото 1
    Помещение свободного назначения в Москва Дмитровское ш., 169К3 (128 м) - Фото 2
    Коммерческое помещение площадью 128.3 м, расположено по адресу: г. Москва, Дмитровское шоссе, 169к3, помещение 9/1 (XII), район Северный. Объект занимает 1 этаж в здании с этажностью 17 этажей. Помещение без отделки, свободного назначения, имеет отдельный...
    • 1/17 эт.
    21 827 000 Р
    Агент
    +7 (985) Показать номер
    Посмотреть контакты
    Помещение свободного назначения в Москва Дмитровское ш., 169К5 (134 м) - Фото 1
    Помещение свободного назначения в Москва Дмитровское ш., 169К5 (134 м) - Фото 2
    Коммерческое помещение площадью 133.7 м, расположено по адресу: г. Москва, Дмитровское шоссе, 169к5, помещение 2/1 (V), район Северный. Объект занимает 1 этаж в здании с этажностью 15 этажей. Помещение без отделки, свободного назначения, имеет отдельный...
    • 1/15 эт.
    22 478 000 Р
    Агент
    +7 (985) Показать номер
    Посмотреть контакты
    Помещение свободного назначения в Москва Сиреневый бул., 3К5 (155 м) - Фото 1
    Помещение свободного назначения в Москва Сиреневый бул., 3К5 (155 м) - Фото 2
    Коммерческое помещение площадью 154.8 м, расположено по адресу: г. Москва, Сиреневый бульвар, 3к5, район Северное Измайлово. Объект занимает 1 этаж в здании с этажностью 9 этажей. Помещение свободного назначения, имеет общий вход. Здание относится к типу...
    • 1/9 эт.
    22 403 000 Р
    Агент
    +7 (985) Показать номер
    Посмотреть контакты

    Не нашли подходящего объявления?

    Оставьте заявку, и наши риэлторы подберут псн в районе Ярославля

    (0)