4 400 000 Р 56 940 $ или 48 190

Информация о квартире

39 м2
Площадь
10 м2
Кухня
1
Комната
6
Этаж
10
Этажность
Развернуть
Агент
+7 (910) 826-15-04
Начать чат с агентом

1-к кв. Ярославская область, Ярославль ул. Академика Колмогорова, 14 ...

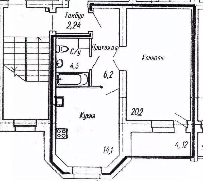
Продается просторная однокомнатная квартира в одном из самых комфортных для жизни районов Ярославля — Фрунзенском. Идеальный вариант как для собственного проживания, так и для сдачи в аренду. Почему эта квартира — удачный выбор: Планировка и пространство:* Общая площадь: 39.8 м — просторнее многих стандартных однушек .* Комната: 19 м, светлая, правильной формы — легко зонировать под спальню и гостиную.* Кухня: 10.4 м — редкость для однокомнатных квартир Поместится гарнитур, обеденная зона и техника.* Утепленная лоджия 4.6 м с выходом из кухни — можно сделать кабинет, зону отдыха или дополнительное хранение.* В прихожей уже установлен встроенный шкаф — экономия времени и денег на мебели.* Совмещенный санузел отделан практичной плиткой — чисто, красиво, не требует вложений.* Квартира полностью готова к заселению — заезжай и живи * Чистый, теплый подъезд с адекватными соседями.* Во дворе — детская игровая площадка, место для прогулок с детьми.* Детский сад и школа — в шаговой доступности.* Магазины, аптеки, пункты выдачи — рядом.* Остановка общественного транспорта — быстрая связь с любым районом Ярославля.* Парки, скверы, зоны отдыха — для прогулок и спорта. АН ЭТАЖИ* Оказываем помощь в оформлении ипотеки: выгодные ставки и страхование. Одобряем даже с плохой кредитной историей. Выгодна до 300 тыс. * Выдаем Гарантийный сертификат по сделке на сумму стоимости недвижимости до * Полное юридическое сопровождение сделки;* Гарантия безопасных расчетов;Звоните прямо сейчас Покажу в удобное время, отвечу на все вопросы. Код пользователя: 198698Номер в базе:

Читать полностью

    Для того, чтобы купить однокомнатную квартиру по адресу: Ярославль, Фрунзенский, ул. Академика Колмогорова, 14, позвоните по телефону +7 (910) 826-15-04. Торопитесь! Объявление №30093919765 о продаже однокомнатной квартиры опубликовано Сегодня.

    Позвонить Написать
    4 400 000 Р56 940 $ или 48 190
    Агент
    +7 (910) 826-15-04
    Начать чат с агентом
    Похожие предложения
    1-к кв. Ярославская область, Ярославль ул. Попова, 14 (56.0 м) - Фото 1
    1-к кв. Ярославская область, Ярославль ул. Попова, 14 (56.0 м) - Фото 2
    1-комнатная квартира, общая площадь 56м², жилая 22м², кухня 17м²

    ПРОДАЁТСЯ ДВУХКОМНАТНАЯ КВАРТИРА В НОВОМ ДОМЕ ВО ФРУНЗЕНСКОМ РАЙОНЕ В ЖК ДОМАШНИЙ Номер объекта в базе: 59568ОПИСАНИЕ КВАРТИРЫ:Индивидуальное Газовое Отопление-комфорт и низкие коммунальные платежи Просторная и светлая квартираКухня площадью 17 кв. м....
    • 56 м²
    • 1-ком
    • 5/9 эт.
    • кирпичный
    4 315 000 Р
    Агент
    +7 (980) Показать номер
    Посмотреть контакты
    1-к кв. Ярославская область, Ярославль ул. Большая Техническая, 15 ... - Фото 1
    1-к кв. Ярославская область, Ярославль ул. Большая Техническая, 15 ... - Фото 2
    1-комнатная квартира, общая площадь 45м², кухня 9м²

    Продам просторную и уютную 1-комнатную квартиру, в Дядьковском районе города Ярославля. Квартиру можно использовать как хороший объект для инвестирования (для посуточной и долгосрочной аренды), так и для проживания. В квартире удобная и просторная планировка....
    • 45 м²
    • 1-ком
    • 1/14 эт.
    • блочный
    4 500 000 Р
    Агент
    +7 (910) Показать номер
    Посмотреть контакты
    1-к кв. Ярославская область, Ярославль Летная ул., 12 (42.9 м) - Фото 1
    1-к кв. Ярославская область, Ярославль Летная ул., 12 (42.9 м) - Фото 2
    1-комнатная квартира, общая площадь 42м², жилая 18м², кухня 13м²

    В продаже новая, просторная однокомнатная квартира в кирпичном доме 2022 года постройки во Фрунзенском районе г.ЯрославляСовременный район с развитой инфраструктурой, все в шаговой доступности.Просторная кухня, правильной формы с выходом на застекленную...
    • 42 м²
    • 1-ком
    • 1/9 эт.
    • кирпичный
    4 400 000 Р
    Агент
    +7 (910) Показать номер
    Посмотреть контакты
    1-к кв. Ярославская область, Ярославль Чернопрудная ул., 13к2 (41.46 ... - Фото 1
    1-к кв. Ярославская область, Ярославль Чернопрудная ул., 13к2 (41.46 ... - Фото 2
    1-комнатная квартира, общая площадь 41м², кухня 13м²

    ВНИМАНИЕ КВАРТИРА С БУДУЩИМ ТОЛЬКО ДЛЯ ТЕХ, КТО ЦЕНИТ КОМФОРТИ ЭКОНОМИЮ1 - КОМНАТНАЯ КВАРТИРА В СОВРЕМЕННОМ ДОМЕ — ФРУНЗЕНСКИЙ РАЙОН, ЯРОСЛАВЛЬ ЖИТЬ УДОБНО — ЭТО РЕАЛЬНООбщая площадь 41,46 м2 Жилая площадь 12,91 м2 Площадь кухни 13,49 м2 Газовое отопление...
    • 41 м²
    • 1-ком
    • 8/18 эт.
    • кирпичный
    4 318 000 Р
    Агент
    +7 (915) Показать номер
    Посмотреть контакты
    1-к кв. Ярославская область, Ярославль Ярославская ул., 144 (45.0 м) - Фото 1
    1-к кв. Ярославская область, Ярославль Ярославская ул., 144 (45.0 м) - Фото 2
    1-комнатная квартира, общая площадь 45м², кухня 14м²

    Продается 1-комнатная квартира на 3 этаже 5-этажного дома Описание:• Тихий и спокойный район• Прекрасная планировка• Большая кухня• Совмещённый санузел• Просторная застеклённая лоджия• Квартира не угловая Удобства:• Установлены счётчики на газ и воду•...
    • 45 м²
    • 1-ком
    • 3/5 эт.
    • кирпичный
    4 450 000 Р
    Агент
    +7 (910) Показать номер
    Посмотреть контакты

    Не нашли подходящего объявления?

    Оставьте заявку, и наши риэлторы подберут квартиру в районе Ярославля

    (0)