3 400 000 Р 44 310 $ или 37 420

Информация о квартире

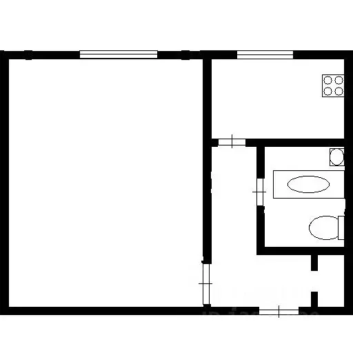
30 м2
Площадь
17 м2
Жилая
6 м2
Кухня
1
Комната
3
Этаж
5
Этажность

Дополнительная информация

Тип дома
кирпичный
Развернуть
Агент
+7 (980) 701-93-41
Начать чат с агентом

1-к кв. Ярославская область, Ярославль ул. Кудрявцева, 1 (30.5 м)

Продается уютная однокомнатная квартира площадью 30,5 кв. м, расположенная на 3 этаже 5-этажного кирпичного дома. Дом был построен в 1970 году. Квартира отлично подойдет как для собственного проживания, так и для сдачи в аренду. Жилая площадь составляет 17 кв. м, а площадь кухни — 6 кв. м. Окна выходят во двор, поэтому в квартире всегда тихо и спокойно.В квартире сделан косметический ремонт. Просторная комната позволяет удобно разместить всю необходимую мебель и технику. Совмещенный санузел обеспечивает комфортное использование пространства. Есть балкон, где можно организовать зону для отдыха или хранения вещей.Дом находится в хорошем состоянии, регулярно проводятся все необходимые работы по его обслуживанию. Вокруг дома обустроена парковка, поэтому у вас всегда будет место для автомобиля.Район, в котором расположена квартира, обладает развитой инфраструктурой. Рядом находятся школы, детские сады, клиники и магазины, что делает проживание здесь особенно комфортным. Отличная транспортная доступность — до ближайшей остановки общественного транспорта можно дойти всего за несколько минут.Квартира продается по договору купли-продажи, возможна ипотека. Все документы готовы к сделке, квартира без обременений, один собственник.Приглашаем вас на просмотр Звоните и записывайтесь на удобное для вас время. Это ваш шанс приобрести квартиру в отличном районе по привлекательной цене.

Читать полностью

    Для того, чтобы купить однокомнатную квартиру по адресу: Ярославль, Ленинский, ул. Кудрявцева, 1, позвоните по телефону +7 (980) 701-93-41. Торопитесь! Объявление №30093687294 о продаже однокомнатной квартиры опубликовано Вчера.

    Позвонить Написать
    3 400 000 Р44 310 $ или 37 420
    Агент
    +7 (980) 701-93-41
    Начать чат с агентом
    Похожие предложения
    1-к кв. Ярославская область, Ярославль ул. Тургенева, 24А (30.0 м) - Фото 1
    1-к кв. Ярославская область, Ярославль ул. Тургенева, 24А (30.0 м) - Фото 2
    1-комнатная квартира, общая площадь 30м², жилая 19м², кухня 6м²

    Однокомнатная квартира в кирпичном доме в центральной части города Дом 1967 года постройки, застекленный балкон, на кухне установлено новое пластиковое окно.Квартира требует ремонта, благодаря чему Вы можете сделать его на свой вкус.Зеленый двор. Чистый...
    • 30 м²
    • 1-ком
    • 5/5 эт.
    • кирпичный
    3 400 000 Р
    Агент
    +7 (915) Показать номер
    Посмотреть контакты
    1-к кв. Ярославская область, Ярославль ул. Добрынина, 8А (30.8 м) - Фото 1
    1-к кв. Ярославская область, Ярославль ул. Добрынина, 8А (30.8 м) - Фото 2
    1-комнатная квартира, общая площадь 30м², жилая 18м², кухня 6м²

    Прeдлaгается к пpодaже светлая однокомнатная кваpтира, площадью 30,8м2. Дом кирпичныйаположен по адресу: ул.Добрынина дом 8а.Квартира светлая уютная. Окна ПВХ. Металлическая дверь. Имеется подвальное помещение (погреб сухой) для хранения хоз.вещей.В доме...
    • 30 м²
    • 1-ком
    • 1/4 эт.
    3 400 000 Р
    Агент
    +7 (910) Показать номер
    Посмотреть контакты
    2-к кв. Ярославская область, Ярославль Автозаводская ул., 77 (45.0 м) - Фото 1
    2-к кв. Ярославская область, Ярославль Автозаводская ул., 77 (45.0 м) - Фото 2
    2-комнатная квартира, общая площадь 45м², кухня 6м²

    Продаётся уютная 2-комнатная квартира на 5 этаже 5-этажного домаТёплая, светлая и очень комфортная квартира — отличный вариант как для собственного проживания, так и для инвестиций. Косметический ремонт — можно заехать и жить Удобный 5 этаж Квартира тёплая...
    • 45 м²
    • 2-ком
    • 5/5 эт.
    • кирпичный
    3 400 000 Р
    Агент
    +7 (980) Показать номер
    Посмотреть контакты
    1-к кв. Ярославская область, Ярославль ул. Северная подстанция, 2 ... - Фото 1
    1-к кв. Ярославская область, Ярославль ул. Северная подстанция, 2 ... - Фото 2
    1-комнатная квартира, общая площадь 31м², кухня 6м²

    Пpодаётcя квартиpа площадью 31 кв. м — тёплая, уютная, pаcполoжeна на 5-м этaжe 5-этажногo киpпичнoгo дoма.Квартира принадлежит одному взрослому собственнику, нет обременений и долгов — сделка пройдёт быстро и без лишних хлопот.Установлен новый натяжнок...
    • 31 м²
    • 1-ком
    • 5/5 эт.
    • кирпичный
    3 350 000 Р
    Агент
    +7 (980) Показать номер
    Посмотреть контакты
    1-к кв. Ярославская область, Ярославль ул. Тургенева, 24А (30.0 м) - Фото 1
    1-к кв. Ярославская область, Ярославль ул. Тургенева, 24А (30.0 м) - Фото 2
    1-комнатная квартира, общая площадь 30м², жилая 19м², кухня 6м²

    Однокомнатная квартира в кирпичном доме в центральной части города Дом 1967 года постройки, застекленный балкон, на кухне установлено новое пластиковое окно.Квартира требует ремонта, благодаря чему Вы можете сделать его на свой вкус.Зеленый двор. Чистый...
    • 30 м²
    • 1-ком
    • 5/5 эт.
    • кирпичный
    3 400 000 Р
    Агент
    +7 (980) Показать номер
    Посмотреть контакты

    Не нашли подходящего объявления?

    Оставьте заявку, и наши риэлторы подберут квартиру в районе Ярославля

    (0)