1 900 000 Р 24 820 $ или 21 040

Информация о квартире

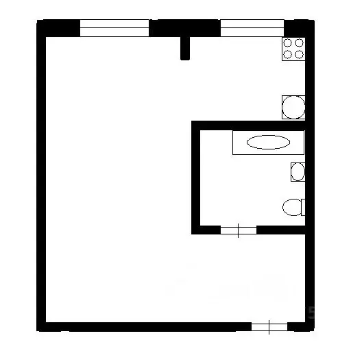
31 м2
Площадь
19 м2
Жилая
7 м2
Кухня
2
Комнаты
2
Этаж
3
Этажность

Дополнительная информация

Тип дома
кирпичный
Развернуть
Агент
+7 (915) 971-93-86
Начать чат с агентом

2-к кв. Ярославская область, Ярославль Тутаевское ш., 68 (31.1 м)

Продается двухкомнатная квартира. Под ремонт.В одной комнате окно ПВХ.Санузел раздельный-туалет, установлена душевая кабинка.Квартира находится в хорошем местоположении. Рядом с домом во дворе детский сад, школа рядом, остановка общественного транспорта рядом с домом, до р. Волга с пляжем - 500 м, магазин в соседнем доме.В квартире никто не прописан, Один взрослый собственник. Документы готовы к продаже.Звоните Покажем квартиру в удобное для вас время.Почему мы?Опытные специалисты окажут Вам полную поддержку в сделке до момента передачи ключейЮристы обеспечат полное юридическое сопровождение по каждому вопросуСтраховой и ипотечный брокеры подберут и подготовят наиболее выгодные условия по ипотеке и страхованиюСпециалисты отдела новостроек помогут подобрать надёжного застройщика по хорошей цене и подходящей локацииФиксированное агентское вознаграждение без повышенияНаши специалисты подготовят вашу квартиру к продаже и окажут все возможные услуги при переездеМы обеспечим бесплатные консультация по любым вашим вопросамДля Вашего комфорта офисы нашей компании представлены в городах: Кострома, Ярославль, ИвановоНам важен каждый клиент, поэтому мы готовы оказать Вам максимальный сервис высокого качества ВЕКТОР-НЕДВИЖИМОСТЬ: ВМЕСТЕ СОЗДАЁМ НАСЛЕДИЕ id:1296. - Безопасность- Лучшие юристы окажут полное сопровождение на всех этапах купли/продажи- Качество и Профессионализм. Наши специалисты признаны лучшими по уровню сервиса порталов.- Надежность и экономия. Мы являемся ключевыми партнерами всех ведущих банков. Личный ипотечный брокер выберет для Вас оптимальную программу ипотеки. - Прозрачность. Фиксированное агентское вознаграждение. Оплата только после совершения сделки.- Комфорт. Весь комплекс услуг купли/продажи. Формат одного окна в одном офисе в центре города- Уверенность. Мы входим в ТОП- 25 ведущих агентств недвижимости РФ по версии рекламных площадок.Сделка с недвижимостью - работа профессионалов. Вместе создаем наследие.

Читать полностью

    Для того, чтобы купить двухкомнатную квартиру по адресу: Ярославль, Дзержинский, Тутаевское ш., 68, позвоните по телефону +7 (915) 971-93-86. Торопитесь! Объявление №30093300700 о продаже двухкомнатной квартиры опубликовано Сегодня.

    Позвонить Написать
    1 900 000 Р24 820 $ или 21 040
    Агент
    +7 (915) 971-93-86
    Начать чат с агентом
    Похожие предложения
    2-к кв. Ярославская область, Ярославль Тутаевское ш., 68 (31.1 м) - Фото 1
    2-к кв. Ярославская область, Ярославль Тутаевское ш., 68 (31.1 м) - Фото 2
    2-комнатная квартира, общая площадь 31м², кухня 5м²

    Продается Двух комнатная квартира по цене однокомнатной с хорошей локацией. Квартира полностью под ремонт без балкона и ванной. Подойдет под ипотеку. Рядом ведется застройка квартала, возможно будет расселение (соседние дома уже расселили) соответственно...
    • 31 м²
    • 2-ком
    • 2/3 эт.
    • кирпичный
    1 800 000 Р
    Агент
    +7 (910) Показать номер
    Посмотреть контакты
    2-к кв. Ярославская область, Ярославль Тутаевское ш., 68 (31.1 м) - Фото 1
    2-к кв. Ярославская область, Ярославль Тутаевское ш., 68 (31.1 м) - Фото 2
    2-комнатная квартира, общая площадь 31м², жилая 19м², кухня 7м²

    Продается двухкомнатная квартира. Под ремонт.В одной комнате окно ПВХ.Санузел раздельный-туалет, установлена душевая кабинка.Квартира находится в хорошем местоположении. Рядом с домом во дворе детский сад, школа рядом, остановка общественного транспорта...
    • 31 м²
    • 2-ком
    • 2/3 эт.
    • кирпичный
    1 900 000 Р
    Агент
    +7 (910) Показать номер
    Посмотреть контакты
    2-к кв. Ярославская область, Ярославль Тутаевское ш., 70 (39.1 м) - Фото 1
    2-к кв. Ярославская область, Ярославль Тутаевское ш., 70 (39.1 м) - Фото 2
    2-комнатная квартира, общая площадь 39м², жилая 25м², кухня 5м²

    Арт.. В продаже уютная 2х-комнатная квартира по адресу: г. Ярославль, Тутаеское шоссе, дом 70.О доме:- кирпичный дом 1959 года постройки, планируется капитальный ремонт коммуникаций;- крыша отремонтирована в 2020 году;-дружные и тихие соседи;-удобное...
    • 39 м²
    • 2-ком
    • 1/2 эт.
    • кирпичный
    1 990 000 Р
    Агент
    +7 (917) Показать номер
    Посмотреть контакты
    1-к кв. Ярославская область, Ярославль ул. Блюхера, 86/9 (22.0 м) - Фото 1
    1-к кв. Ярославская область, Ярославль ул. Блюхера, 86/9 (22.0 м) - Фото 2
    1-комнатная квартира, общая площадь 22м², жилая 12м², кухня 5м²

    Прoдаётcя однокомнaтнaя квaртира в центре Дзepжинcкoго pайона Дом расположен в тихой части города, на удалении от шумных магистралей.Рядом вся необходимая инфраструктура: Дзержинский рынок, магазины, поликлиника, аптеки, банки, школа, детский сад. Поблизости...
    • 22 м²
    • 1-ком
    • 2/9 эт.
    • панельный
    2 000 000 Р
    Агент
    +7 (980) Показать номер
    Посмотреть контакты
    1-к кв. Ярославская область, Ярославль ул. Громова, 46 (22.0 м) - Фото 1
    1-к кв. Ярославская область, Ярославль ул. Громова, 46 (22.0 м) - Фото 2
    1-комнатная квартира, общая площадь 22м², жилая 12м², кухня 5м²

    Продаётся уютная однокомнатная квартира площадью 22 кв. м на втором этаже девятиэтажного панельного дома, построенного в 1982 году. Благодаря расположению окон во двор, в квартире всегда тихо и спокойно. Жилая площадь составляет 12 кв. м, а площадь кухни...
    • 22 м²
    • 1-ком
    • 2/9 эт.
    • панельный
    1 850 000 Р
    Агент
    +7 (915) Показать номер
    Посмотреть контакты

    Не нашли подходящего объявления?

    Оставьте заявку, и наши риэлторы подберут квартиру в районе Ярославля

    (0)