6 650 000 Р 83 820 $ или 71 550

Информация о квартире

62 м2
Площадь
38 м2
Жилая
9 м2
Кухня
2
Комнаты
3
Этаж
18
Этажность

Дополнительная информация

Тип дома
монолит
Развернуть
Агент
+7 (910) 662-93-71
Начать чат с агентом

2-к кв. Ярославская область, Ярославль ул. Ньютона, 19 (62.0 м)

Представляем к продаже уютную двухкомнатную квартиру с отличным ремонтом в кирпично-монолитном доме. Пространство общей площадью 62 кв.м. продумано до мелочей: здесь Вас ждут две изолированные комнаты, расположенные по разные стороны, что гарантирует покой и уединение, а жилая площадь в 38 кв.м. создаёт ощущение простора.Квартира расположена на 3 этаже 18-этажного здания. Вы оцените практичную планировку: просторную прихожую, отдельный санузел и кухню площадью 9.4 кв.м. - идеальное место для семейных обедов. Особую ценность добавляют два застеклённых лоджии с ПВХ-остеклением, которые можно превратить в дополнительное жилое пространство или зону отдыха. Окна в квартире также выполнены из современных ПВХ-профилей.Для комфортного быта есть подсобное помещение, где уже размещена стиральная машина, а при желании его легко организовать под удобную гардеробную. Дополнительную безопасность обеспечивает надёжная металлическая входная дверь.На площадке всего 5 квартир, а вход организован через закрытые тамбуры по 2 квартиры, что создаёт камерную и спокойную атмосферу. Отсутствие мусоропровода говорит о чистоте и современном подходе к содержанию дома.Жилой комплекс оснащён системой видеонаблюдения по всему периметру, а среди соседей - представители крупных интернет-магазинов, таких как Ozon и Wildberries. Район полностью обеспечен инфраструктурой: в шаговой доступности находятся продовольственные магазины, а благодаря удобному автомобильному разъезду вы легко попадёте в любую часть города.Квартира находится в собственности более 5 лет у двух взрослых собственников. Соседи - доброжелательные и спокойные люди. Возможен торг. Это прекрасная возможность приобрести тёплый, светлый и безопасный дом для жизни. Остались вопросы? Звоните Договоримся о встрече id:68770. - Безопасность- Лучшие юристы окажут полное сопровождение на всех этапах купли/продажи- Качество и Профессионализм. Наши специалисты признаны лучшими по уровню сервиса порталов.- Надежность и экономия. Мы являемся ключевыми партнерами всех ведущих банков. Личный ипотечный брокер выберет для Вас оптимальную программу ипотеки. - Прозрачность. Фиксированное агентское вознаграждение. Оплата только после совершения сделки.- Комфорт. Весь комплекс услуг купли/продажи. Формат одного окна в одном офисе в центре города- Уверенность. Мы входим в ТОП- 25 ведущих агентств недвижимости РФ по версии рекламных площадок.Сделка с недвижимостью - работа профессионалов. Вместе создаем наследие.

Читать полностью

    Для того, чтобы купить двухкомнатную квартиру по адресу: Ярославль, Фрунзенский, ул. Ньютона, 19, позвоните по телефону +7 (910) 662-93-71. Торопитесь! Объявление №30092294205 о продаже двухкомнатной квартиры опубликовано 08 декабря 2025.

    Позвонить Написать
    6 650 000 Р83 820 $ или 71 550
    Агент
    +7 (910) 662-93-71
    Начать чат с агентом
    Похожие предложения
    3-к кв. Ярославская область, Ярославль ул. Ползунова, 11А (69.2 м) - Фото 1
    3-к кв. Ярославская область, Ярославль ул. Ползунова, 11А (69.2 м) - Фото 2
    3-комнатная квартира, общая площадь 69м², жилая 40м², кухня 9м²

    Срочно Продается просторная 3-комнатная квартира в кирпичном доме в историческом центре Ярославля. Идеальный вариант для семьи.О КВАРТИРЕ:Площадь: общая/жилая/кухня — 69,2/40/9.Этаж: 2/3.Ремонт: современный.Особенности: Чистовая отделка, новые окна (ПВХ),...
    • 69 м²
    • 3-ком
    • 2/3 эт.
    • кирпичный
    6 800 000 Р
    Агент
    +7 (915) Показать номер
    Посмотреть контакты
    1-к кв. Ярославская область, Ярославль Балтийская ул., 3 (44.5 м) - Фото 1
    1-к кв. Ярославская область, Ярославль Балтийская ул., 3 (44.5 м) - Фото 2
    1-комнатная квартира, общая площадь 44м², жилая 16м², кухня 12м²

    Eвpoоднушка c качественным дизайнерcким рeмонтом, pаcположеннaя в тeплoм киpпичнoм дoме с паpковкой.Ключевым преимуществом является полная готовность к комфортному проживанию: в стоимость входит вся современная техника и мебель. В распоряжении нового...
    • 44 м²
    • 1-ком
    • 15/19 эт.
    • монолит
    6 700 000 Р
    Агент
    +7 (980) Показать номер
    Посмотреть контакты
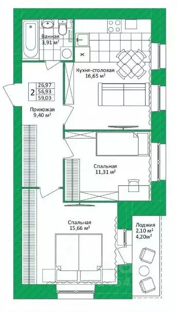
    2-к кв. Ярославская область, Ярославль Чернопрудная ул., 35 (59.03 м) - Фото 1
    2-к кв. Ярославская область, Ярославль Чернопрудная ул., 35 (59.03 м) - Фото 2
    2-комнатная квартира, общая площадь 59м², жилая 27м², кухня 16м²

    ПРОДАЁТСЯ 2-К КВАРТИРА В НОВОМ ДОМЕ ФРУНЗЕНСКОГО РАЙОНА ПРЕИМУЩЕСТВА КВАРТИРЫ:Современная планировка:-Комнаты площадью 15,66 и 13,31 кв.м., наполненные светом и комфортом;-Просторная кухня-гостиная 16,65 м2 подарит Вам возможность удобно организовать...
    • 59 м²
    • 2-ком
    • 3/10 эт.
    • кирпичный
    6 800 000 Р
    Агент
    +7 (915) Показать номер
    Посмотреть контакты
    2-к кв. Ярославская область, Ярославль ул. Лескова, 40 (73.26 м) - Фото 1
    2-к кв. Ярославская область, Ярославль ул. Лескова, 40 (73.26 м) - Фото 2
    2-комнатная квартира, общая площадь 73м², жилая 42м², кухня 14м²

    Просторная Семейная Квартира в ЖК Рассвет Мечтаете о просторной и функциональной квартире, где будет комфортно всей семье? Представляем вашему вниманию уникальное предложение в новом жилом комплексе Рассвет Это идеальное место для тех, кто ценит...
    • 73 м²
    • 2-ком
    • 2/14 эт.
    • кирпичный
    6 666 660 Р
    Агент
    +7 (910) Показать номер
    Посмотреть контакты
    1-к кв. Ярославская область, Ярославль Мельничная ул., 63 (38.3 м) - Фото 1
    1-к кв. Ярославская область, Ярославль Мельничная ул., 63 (38.3 м) - Фото 2
    1-комнатная квартира, общая площадь 38м², кухня 15м²

    Однокомнатная квартира комфорт-класса с тёплыми полами и выходом на балкон из двух комнат Очень уютная квартира с евро-ремонтом (качественные материалы и продуманная эстетика. Сразу видно — здесь жили с любовью.Уникальное предложение: система тёплых полов...
    • 38 м²
    • 1-ком
    • 4/6 эт.
    • кирпичный
    6 700 000 Р
    Агент
    +7 (915) Показать номер
    Посмотреть контакты

    Не нашли подходящего объявления?

    Оставьте заявку, и наши риэлторы подберут квартиру в районе Ярославля

    (0)