Реализация объекта недвижимости приостановлена

Информация о квартире

56.0 м2
Площадь
38.0 м2
Жилая
4.0 м2
Кухня
3
Комнаты
4
Этаж
4
Этажность
Развернуть

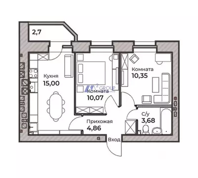
3-комнатная квартира: Ярославль, улица Чкалова, 64Б (56.2 м)

ПРОДАЕТСЯ ТРЕХКОМНАТНАЯ КВАРТИРА В ЛЕНИНСКОМ РАЙОНЕ Одна из лучших в сегменте хрущевок Квартира расположена на 4 этаже 4-этажного кирпичного дома. Общая площадь — 56,2 м, жилая — 38,6 м, площадь кухни — 4,8 м. Стоимость —.• Планировка продуманная: две раздельные комнаты и одна проходная. В квартире раздельный санузел, есть ниша в прихожей и шкаф-холодильник под кухонным окном. Также имеется балкон с козырьком.• В 2013 году был сделан капитальный ремонт, поэтому квартира ждёт новых жильцов в отличном состоянии. Установлены современные деревянные окна, двери из натурального шпона фирмы «Софья , а также фирменная электрика Schneider. В ванной уложен тёплый пол.• Из окон открывается вид на сквер — это создаёт особую атмосферу уюта и спокойствия. В подвале есть хозблок, а в прихожей — кладовая с системой хранения (её не видно на фото). В квартире никогда не было проблем с тараканами, а соседи — замечательные люди.• Для вашего комфорта и безопасности установлено видеонаблюдение. Транспортная доступность отличная: на автомобиле можно добраться в любой конец города примерно за 15–20 минут, на общественном транспорте — за 30–40 минут.• Район с развитой инфраструктурой: рядом поликлиники, магазины, детские сады, школы и места для прогулок. Дом построен до хрущёвской жилищной реформы и изначально был кооперативным, что гарантирует хороший контингент собственников и достойное содержание дома. Трубы холодного водоснабжения и электрика обновлены в 2012 году, кровля — в 2000 году, а подъезд отремонтирован в 2024 году. Если вы заинтересованы в этой квартире или хотите задать вопросы, свяжитесь со мной Я с радостью помогу вам с организацией просмотра и предоставлю всю необходимую информацию. Не упустите возможность стать владельцем этой замечательной квартиры id:63137. - Безопасность- Лучшие юристы окажут полное сопровождение на всех этапах купли/продажи- Качество и Профессионализм. Наши специалисты признаны лучшими по уровню сервиса порталов.- Надежность и экономия. Мы являемся ключевыми партнерами всех ведущих банков. Личный ипотечный брокер выберет для Вас оптимальную программу ипотеки. - Прозрачность. Фиксированное агентское вознаграждение. Оплата только после совершения сделки.- Комфорт. Весь комплекс услуг купли/продажи. Формат одного окна в одном офисе в центре города- Уверенность. Мы входим в ТОП- 25 ведущих агентств недвижимости РФ по версии рекламных площадок.Сделка с недвижимостью - работа профессионалов. Вместе создаем наследие.

Читать полностью

    Реализация объекта недвижимости приостановлена

    Не нашли подходящего объявления?

    Оставьте заявку, и наши риэлторы подберут квартиру в районе Ярославля

    (0)