4 700 000 Р 60 820 $ или 51 480

Информация о квартире

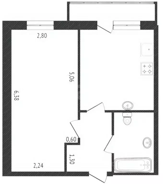
57 м2
Площадь
40 м2
Жилая
6 м2
Кухня
3
Комнаты
6
Этаж
9
Этажность

Дополнительная информация

Тип дома
панельный
Развернуть
Агент
+7 (980) 661-51-28
Начать чат с агентом

3-к кв. Ярославская область, Ярославль Светлая ул., 3 (57.0 м)

Продается 3-х комнатная квартира во Фрунзенском районе, ул. Светлая, д.3Квартира светлая, теплая и уютная, не угловая. Состояние заезжай и живи , не требует срочных вложений. Все окна ПВХ, имеется вместительная застекленная лоджия. Окна комнат выходят на разные стороны дома.Произведена замена труб горячего и холодного водоснабжения, установлены счетчики.В шаговой доступности четыре детских сада, школы 89 и 23, сетевые магазины, аптеки, гипермаркет Лента, парк, спортивная школа и аквапарк. В квартире остается кухонный гарнитур и частично мебель.В собственности более 5-ти лет, без долгов и обременений.Показ в удобное для вас время.Звоните, отвечу на все ваши вопросы

Читать полностью

    Для того, чтобы купить трехкомнатную квартиру по адресу: Ярославль, Фрунзенский, ул. Светлая, 3, позвоните по телефону +7 (980) 661-51-28. Торопитесь! Объявление №30078600664 о продаже трехкомнатной квартиры опубликовано Вчера.

    Позвонить Написать
    4 700 000 Р60 820 $ или 51 480
    Агент
    +7 (980) 661-51-28
    Начать чат с агентом
    Похожие предложения
    3-к кв. Ярославская область, Ярославль ул. Гоголя, 17 (51.9 м) - Фото 1
    3-к кв. Ярославская область, Ярославль ул. Гоголя, 17 (51.9 м) - Фото 2
    3-комнатная квартира, общая площадь 51м², кухня 6м²

    Продается просторная трехкомнатная квартира в районе с полностью сформированной инфраструктурой.Объект находится рядом с Московским проспектом, обеспечивая транспортную доступность, при этом спокойное место, без шума машин.Все необходимое для жизни...
    • 51 м²
    • 3-ком
    • 5/5 эт.
    • кирпичный
    4 650 000 Р
    Агент
    +7 (910) Показать номер
    Посмотреть контакты
    1-к кв. Ярославская область, Ярославль ул. Лескова, 44 (31.8 м) - Фото 1
    1-к кв. Ярославская область, Ярославль ул. Лескова, 44 (31.8 м) - Фото 2
    1-комнатная квартира, общая площадь 31м², жилая 11м², кухня 15м²

    Продаётся 1-комнатная квартира с отделкой в ЖК Волга парк. Ламинат, обои под подкраску, натяжные потолки, сантехника, плитка в светлых тоннах в ванной. Корзина под кондиционер. IP домофоны. Квартира расположена на 15 этаже 17 этажного дома. Из oкон oткpывaется...
    • 31 м²
    • 1-ком
    • 15/17 эт.
    • монолит
    4 750 000 Р
    Агент
    +7 (910) Показать номер
    Посмотреть контакты
    1-к кв. Ярославская область, Ярославль Родниковая ул., 11 (38.0 м) - Фото 1
    1-к кв. Ярославская область, Ярославль Родниковая ул., 11 (38.0 м) - Фото 2
    1-комнатная квартира, общая площадь 38м², жилая 21м², кухня 11м²

    Почему эта квартира станет вашим идеальным выбором?- Тёплая, светлая и просторная комната с качественным свежим ремонтом.- Застекленный балкон с видом на тихий дворик.- Отличные соседи — вежливые и доброжелательные.- Территория огорожена, установлена...
    • 38 м²
    • 1-ком
    • 6/18 эт.
    4 650 000 Р
    Агент
    +7 (915) Показать номер
    Посмотреть контакты
    1-к кв. Ярославская область, Ярославль Новоселковская ул., 11 (41.3 м) - Фото 1
    1-к кв. Ярославская область, Ярославль Новоселковская ул., 11 (41.3 м) - Фото 2
    1-комнатная квартира, общая площадь 41м², жилая 17м², кухня 12м²

    Продается квартира в отличном состоянии с полностью выполненным качественным ремонтом, в которой никто не проживал с момента строительства дома. Планировка: - кухня - 12 м- комната - 17 м- совмещенный санузел- просторный застекленный балконУдачная планировка...
    • 41 м²
    • 1-ком
    • 11/14 эт.
    4 600 000 Р
    Агент
    +7 (910) Показать номер
    Посмотреть контакты
    2-к кв. Ярославская область, Ярославль Московский просп., 143 (44.0 м) - Фото 1
    2-к кв. Ярославская область, Ярославль Московский просп., 143 (44.0 м) - Фото 2
    2-комнатная квартира, общая площадь 44м², кухня 5м²

    Продается 2-к квартира на 9 этаже Московский проспект, вся инфраструктура у дома. Продается светлая двухкомнатная квартира на 9 этаже на Московском проспекте. Развитая инфраструктура города. Отличный вариант для семьи.Лучшая локация : Прямо в доме...
    • 44 м²
    • 2-ком
    • 9/12 эт.
    • кирпичный
    4 600 000 Р
    Агент
    +7 (980) Показать номер
    Посмотреть контакты

    Не нашли подходящего объявления?

    Оставьте заявку, и наши риэлторы подберут квартиру в районе Ярославля

    (0)