9 697 755 Р 119 700 $ или 103 200

Информация о квартире

94 м2
Площадь
3
Комнаты
12
Этаж
15
Этажность

Дополнительная информация

Тип дома
кирпичный
Развернуть
Агент
+7 (930) 504-73-66
Начать чат с агентом

3-к кв. Ярославская область, Ярославль ул. Старая Костромская, 6 (94.3 ...

Продается квартира в сданном доме комфорт класса.Отличная планировка.Индивидуальная газовая котельная (низкие платежи за отопление).Высокий класс энергосбережения.Два бесшумных лифта (грузовой и пассажирский)Колясочная на первом этаже дома.Эксплуатируемая кровля.Удобное расположение (транспорт в любой конец города) Школа 35 и 14; садик 28 и 18 в пешей доступностиБольшая стоянка во дворе дома.ДОМ СДАН, КЛЮЧИ В ДЕНЬ Сделки. Подходит под льготную ипотеку 6 , услуги брокера БЕСПЛАТНО. Звоните расскажу все подробности, покажу вживую

Читать полностью
    Позвонить Написать
    9 697 755 Р119 700 $ или 103 200
    Агент
    +7 (930) 504-73-66
    Начать чат с агентом
    Похожие предложения
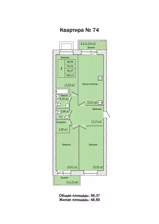
    3-к кв. Ярославская область, Ярославль пер. Минина (96.37 м) - Фото 1
    3-к кв. Ярославская область, Ярославль пер. Минина (96.37 м) - Фото 2
    3-комнатная квартира, общая площадь 96м²

    Продаётся 3-комнатная квартира в строящемся доме (дом 7), срок сдачи: II-кв. 2026, общей площадью 96.37 кв.м., на 1 этаже.
    • 96 м²
    • 3-ком
    • 1/8 эт.
    • кирпичный
    9 647 000 Р
    Агент
    +7 (930) Показать номер
    Посмотреть контакты
    1-к кв. Ярославская область, Ярославль пос. Коровники,  (46.58 м) - Фото 1
    1-к кв. Ярославская область, Ярославль пос. Коровники,  (46.58 м) - Фото 2
    1-комнатная квартира, общая площадь 46м², жилая 21м², кухня 10м²

    Жилой квартал Легенда - квартиры бизнес-класса в легендарной локации на месте слияния двух рек Волги и Которосли, в окружении объектов культурного наследия Юнеско Церковь Иоанна Златоуста и памятник 18 века. Проект граничит с природным парком на набережной,...
    • 46 м²
    • 1-ком
    • 4/5 эт.
    • кирпичный
    9 649 094 Р
    Агент
    +7 (992) Показать номер
    Посмотреть контакты
    1-к кв. Ярославская область, Ярославль пос. Коровники,  (43.17 м) - Фото 1
    1-к кв. Ярославская область, Ярославль пос. Коровники,  (43.17 м) - Фото 2
    1-комнатная квартира, общая площадь 43м², жилая 16м², кухня 17м²

    Жилой квартал Легенда - квартиры бизнес-класса в легендарной локации на месте слияния двух рек Волги и Которосли, в окружении объектов культурного наследия Юнеско Церковь Иоанна Златоуста и памятник 18 века. Проект граничит с природным парком на набережной,...
    • 43 м²
    • 1-ком
    • 5/5 эт.
    • кирпичный
    9 609 849 Р
    Агент
    +7 (992) Показать номер
    Посмотреть контакты
    3-к кв. Ярославская область, Ярославль Чернопрудная ул., 41 (105.59 м) - Фото 1
    3-к кв. Ярославская область, Ярославль Чернопрудная ул., 41 (105.59 м) - Фото 2
    3-комнатная квартира, общая площадь 105м², жилая 45м², кухня 16м²

    Продается 3-комнатная квартира в современном ЖК Фрунзенского района Чернопрудная дом 2 Квартира:-Отделка под чистовую (поверхности подготовлены к финишной отделке );-Полы-цементная стяжка, стены и потолок-шпатлевка, сделана разводка отопления и электрики,-Окна...
    • 105 м²
    • 3-ком
    • 1/18 эт.
    9 714 280 Р
    Агент
    +7 (936) Показать номер
    Посмотреть контакты
    3-к кв. Ярославская область, Ярославль ул. 1-я Приволжская, 6А (85.49 ... - Фото 1
    3-к кв. Ярославская область, Ярославль ул. 1-я Приволжская, 6А (85.49 ... - Фото 2
    3-комнатная квартира, общая площадь 85м², жилая 41м², кухня 21м²

    В продаже 3 комнатная квартира от застройщика.ЖК Московский Квартал , продуманный с учетом всех потребностей современного городского жителя.Домасполагается поблизости от Московского проспекта и проспекта Фрунзе, состоит из 4 подъездов комфортной высотности...
    • 85 м²
    • 3-ком
    • 2/9 эт.
    • кирпичный
    9 690 000 Р
    Агент
    +7 (962) Показать номер
    Посмотреть контакты

    Не нашли подходящего объявления?

    Оставьте заявку, и наши риэлторы подберут квартиру в новостройке в районе Ярославля

    (0)