7 871 600 Р 102 500 $ или 88 020

Информация о квартире

70 м2
Площадь
45 м2
Жилая
8 м2
Кухня
3
Комнаты
4
Этаж
18
Этажность

Дополнительная информация

Тип дома
монолит
Развернуть
Агент
+7 (985) 672-19-98
Начать чат с агентом

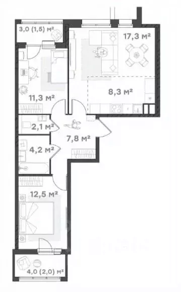
3-к кв. Ярославская область, Ярославль Тутаевское ш., 93Б (70.9 м)

Семейная квартира формата 2+Прихожая с местом под шкаф-купе.Просторная и функциональная кухня-гостиная, где сможет собираться вся семья.Две уютные спальни, окна которых выходят на разные стороны света. В одной из спален предусмотрен выход на лоджию.Раздельный санузел.

Читать полностью
    Позвонить Написать
    7 871 600 Р102 500 $ или 88 020
    Агент
    +7 (985) 672-19-98
    Начать чат с агентом
    Похожие предложения в Ярославле
    2-к кв. Ярославская область, Ярославль Тутаевское ш., 93Б (55.5 м) - Фото 1
    2-к кв. Ярославская область, Ярославль Тутаевское ш., 93Б (55.5 м) - Фото 2
    2-комнатная квартира, общая площадь 55м², жилая 28м², кухня 11м²

    Классическая двухкомнатнаяВходя в эту квартиру, мы попадаем в просторный коридор 9,1 кв. м с выделенным местом под шкаф-купе. Отлично, именно здесь вы сможете хранить свою верхнюю одеждуПрямо из коридора мы попадаем в классическую кухню площадью 11,8...
    • 55 м²
    • 2-ком
    • 5/9 эт.
    • монолит
    7 997 300 Р
    Агент
    +7 (985) Показать номер
    Посмотреть контакты
    2-к кв. Ярославская область, Ярославль Тутаевское ш., 93Б (68.9 м) - Фото 1
    2-к кв. Ярославская область, Ярославль Тутаевское ш., 93Б (68.9 м) - Фото 2
    2-комнатная квартира, общая площадь 68м², жилая 25м², кухня 20м²

    Продаётся квартира в строящемся ЖК Новеллы в Дзержинском районеО ДОМЕСовременный жилой комплекс комфорт класса Приватный безопасный двор без машин все парковочные места разместятся за периметром двора.Система контроля доступа в подъезд, видеонаблюдение,...
    • 68 м²
    • 2-ком
    • 6/18 эт.
    • кирпичный
    7 804 300 Р
    Агент
    +7 (992) Показать номер
    Посмотреть контакты
    2-к кв. Ярославская область, Ярославль Тутаевское ш., 93Б (66.6 м) - Фото 1
    2-к кв. Ярославская область, Ярославль Тутаевское ш., 93Б (66.6 м) - Фото 2
    2-комнатная квартира, общая площадь 66м², жилая 23м², кухня 25м²

    Продаётся квартира в строящемся ЖК Новеллы в Дзержинском районеО ДОМЕСовременный жилой комплекс комфорт класса Приватный безопасный двор без машин все парковочные места разместятся за периметром двора.Система контроля доступа в подъезд, видеонаблюдение,...
    • 66 м²
    • 2-ком
    • 10/18 эт.
    • кирпичный
    7 917 820 Р
    Агент
    +7 (992) Показать номер
    Посмотреть контакты
    3-к кв. Ярославская область, Ярославль Тутаевское ш., 93Б (71.0 м) - Фото 1
    3-к кв. Ярославская область, Ярославль Тутаевское ш., 93Б (71.0 м) - Фото 2
    3-комнатная квартира, общая площадь 71м², жилая 45м², кухня 8м²

    Семейная квартира формата 2+Просторная квартира с прихожей почти 10 кв.м.Функциональная кухня-гостиная.Две спальни, окна которых выходят на разные стороны света. В одной из спален есть своя лоджия, где можно обустроить дополнительную зону отдыха.Раздельный...
    • 71 м²
    • 3-ком
    • 3/18 эт.
    • монолит
    7 844 400 Р
    Агент
    +7 (985) Показать номер
    Посмотреть контакты
    2-к кв. Ярославская область, Ярославль Тутаевское ш., 93Б (68.9 м) - Фото 1
    2-к кв. Ярославская область, Ярославль Тутаевское ш., 93Б (68.9 м) - Фото 2
    2-комнатная квартира, общая площадь 68м², жилая 25м², кухня 20м²

    Семейная квартира формата 2+Просторная квартира с прихожей с местом под шкаф. Большая, удачно зонированная кухня-гостиная.Две отдельные комнаты. Мастер спальня с просторным собственным санузлом, гардеробной и выходом на лоджию, где можно обустроить дополнительную...
    • 68 м²
    • 2-ком
    • 6/9 эт.
    • монолит
    7 804 300 Р
    Агент
    +7 (985) Показать номер
    Посмотреть контакты

    Не нашли подходящего объявления?

    Оставьте заявку, и наши риэлторы подберут квартиру в новостройке в районе Ярославля

    (0)