Россия, Ярославская область, Ярославль, Московский Квартал жилой комплекс

Реализация объекта недвижимости приостановлена

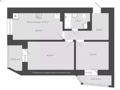
Информация о квартире

65.0 м2
Площадь
2
Комнаты
9
Этаж
12
Этажность

Дополнительная информация

Тип дома
кирпичный
Развернуть

2-к кв. Ярославская область, Ярославль Московский Квартал жилой ...

Продаётся 2-комнатная квартира в строящемся доме (Строение 2 (Секция 1)), срок сдачи: IV-кв. 2026, общей площадью 65.23 кв.м., на 9 этаже. В рамках программы социально-экономического развития Ярославля, в перспективном Фрунзенском районе города стартует масштабный проект освоения территории под жилую застройку. Проект реализуется проверенным ярославским застройщиком - Группой компаний Ярстройзаказчик . Новый, современный жилой микрорайон Московский кварталасположен на съезде с Московского проспекта в сторону проспекта Фрунзе, вблизи от крупных транспортных магистралей, центра Ярославля и на комфортном расстоянии от Московского железнодорожного вокзала. Квартал располагает существующей развитой инфраструктурой: в пешей доступности находятся супер-маркеты, аптеки, школы, детская и взрослая поликлиники, банки, дворец культуры, кафе; в 5 минутах езды находятся крупные спортивные объекты, в том числе федеральный центр подготовки олимпийского резерва по хоккею, торговый центр Метро Кэш энд Кэрри , строительный гипермаркет АКСОН , мебельный гипермаркет Аллегро . Местоположение жилого квартала выгодно отличается от положения других новостроек Фрунзенского района. Благодаря близости Московского проспекта, в центр города можно будет попасть, минуя поток городского трафика с Липовой горы. Через проспекты Московский и Фрунзе проходит множество городских и пригородных автобусных маршрутов. Улучшению транспортной ситуации в районе Московского проспекта будет способствовать строительство нового транспортного узла - Карабулинской развязки . Транспортный узел объединит маршруты общественного транспорта, разгрузит существующие транспортные магистрали. Кроме того, Московский кварталасположен в комфортной близости от железнодорожного и авто вокзалов. Московский кварталасположен в развитом Фрунзенском районе, где уже создана и продолжает развитие социально-бытовая и современная торговая инфраструктуры. В непосредственной близости находятся 2 детских сада, 2 школы и лицей, Московский Гос. Университет Путей Сообщения , взрослая и детская поликлиники, кафе, ресторан и магазины. В 5 минутах езды расположен гипермаркет МЕТРО , строительный гипермаркет АКСОН и мебельный центр Аллегро . Также в пешей доступности от микрорайона заканчивается строительство Федерального центра подготовки молодежного олимпийского резерва по хоккею и продолжается строительство аквапарка. За 10-15 минут можно добраться до Ярославского Государственного Технического Университета , Российского Экономического Университета им. Плеханова . Согласно планам городского развития, в микрорайоне предусмотрено строительство детского сада, физкультурно-оздоровительного комплекса. На придомовых территориях будут организованы парковочные места. Проектом планировки предусмотрено комплексное освоение территории. Согласно планам городского развития, в микрорайоне планируется размещение социально значимых объектов - детского сада на 120 мест и физкультурно-оздоровительного комплекса. З

Читать полностью

    Реализация объекта недвижимости приостановлена

    Не нашли подходящего объявления?

    Оставьте заявку, и наши риэлторы подберут квартиру в новостройке в районе Ярославля

    (0)