Реализация объекта недвижимости приостановлена

Информация о квартире

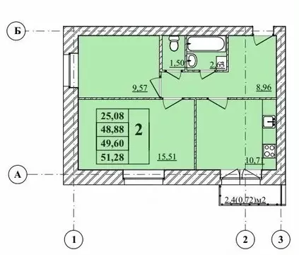
54.0 м2
Площадь
28.0 м2
Жилая
10.0 м2
Кухня
2
Комнаты
1
Этаж
4
Этажность

Дополнительная информация

Тип дома
кирпичный
Развернуть

2-к кв. Ярославская область, Ярославль ул. Шевелюха, 124А (54.7 м)

Продается 2-комнатная квартира 36 в жилом доме комфорт-класса В каждой квартире установлено индивидуальное газовое отопление, а подъезды оборудованы современными комфортабельными лифтами ЖК Ботаника островок спокойствия и благополучия посреди шумного города Наш квартал — новая точка на карте города. И как все новое, он привлекает к себе внимание не только высоким качеством домостроения, но и удачным расположением. Это самый экологически чистый район Ярославля — вокруг сосновый лес и свежий воздух Жилой квартал обладает отличной транспортной доступностью, всего за пару минут можно пройти к остановке общественного транспорта и быстро добраться в любую точку города. Неподалеку от комплекса пролегают главные магистрали — 10 минут и вы в любом районе Ярославля без пробок В шаговой доступности есть всё необходимое для комфортной жизни и досуга: супермаркеты, фермерский магазин, великолепный Ярославский Зоопарк, озеро Техас - хит пляжного сезона в обрамлении Смоленского бора. Рядом находится Тверицкая набережная реки Волги и вся развитая инфраструктура Заволжского и Кировского районов. Жилой квартал представляет собой комплексную застройку с авторской архитектурой, современным домостроением и благоустроенной прилегающей территорией. Организованы детские игровые площадки, спортивный комплекс и отдельная территория для прогулок с домашними питомцами.

Читать полностью

    Реализация объекта недвижимости приостановлена

    Не нашли подходящего объявления?

    Оставьте заявку, и наши риэлторы подберут квартиру в новостройке в районе Ярославля

    (0)