2 100 000 Р 25 650 $ или 22 170

Информация о квартире

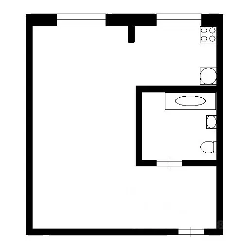
36 м2
Площадь
25 м2
Жилая
6 м2
Кухня
2
Комнаты
2
Этаж
2
Этажность
Развернуть
Агент
+7 (915) 960-09-17
Начать чат с агентом

2-комнатная квартира: Углич, Вокзальная улица, 10 (36.8 м)

id:520. Продам 2-х комнатную квартиру по адресу: ул. Вокзальная, д.10, г. Углич Ярославской области, квартира расположена на 2 этаже двухэтажного кирпичного дома. ( комнаты раздельные.) Квартира с ИНДИВИДУАЛЬНЫМ ГАЗОВЫМ ОТОПЛЕНИЕМ Экологически чистый район. Есть гараж металлический. За домом сосновый бор. Места для прогулок и отдыха Параметры квартиры: Общая площадь - 36.8 кв.м ., кухня-6 кв.м. Сан. узел- туалет( душевая стоит в комнате). Квартира с частичным ремонтом. Хорошая металлическая входная дверь. Окна-ПВХ, выходят на разные стороны.Инфраструктура:рядом магазин Магнит, Пятёрочка, пункт выдачи интернет-магазина, школа №5, дет. сад. У дома парковочная зона. Хорошие соседи. За домом имеется место для отдыха- можно пожарить шашлыки, посадить зелень, овощи.Преимущества дома:Кирпичный дом, построенный по Гостам с отличной тепло и шумоизоляцией. Отличная локация, всё в шаговой доступности. Низкие коммунальные платежи.Рассмотрим: ипотеку, сертификаты, мат. капитал. Если у вас есть своя непроданная недвижимость, и вам понравилась наша, можем помочь оперативно и максимально по рыночной цене продать вашу недвижимость. Будем рады помочь.Скидка реальному покупателю - оговаривается при просмотре.Звоните, отвечу на все вас интересующие вопросы.Проверка юридической чистоты и помощь в сделке включены в стоимость.

Читать полностью

    Для того, чтобы купить двухкомнатную квартиру по адресу: Углич, ул. Вокзальная, 10, позвоните по телефону +7 (915) 960-09-17. Торопитесь! Объявление №30094175708 о продаже двухкомнатной квартиры опубликовано 12 марта 2026.

    Позвонить Написать
    2 100 000 Р25 650 $ или 22 170
    Агент
    +7 (915) 960-09-17
    Начать чат с агентом
    Похожие предложения
    1-к кв. Ярославская область, Углич ш. 2-я линия Рыбинского, 2 (31.3 м) - Фото 1
    1-к кв. Ярославская область, Углич ш. 2-я линия Рыбинского, 2 (31.3 м) - Фото 2
    1-комнатная квартира, общая площадь 31м², жилая 18м², кухня 6м²

    Арт.Продается ОДНОКОМНАТНАЯ квартира, находящаяся по адресу: Ярославская область, г. Углич, ул. 2-л. Рыбинское шоссе д. 2Год постройки дома 1968ОПИСАНИЕ:Квартира расположена на ПЕРВОМ этаже пятиэтажного дома.Уютная, очень теплая, светлая, не угловая,...
    • 31 м²
    • 1-ком
    • 1/5 эт.
    • кирпичный
    2 100 000 Р
    Агент
    +7 (980) Показать номер
    Посмотреть контакты
    3-к кв. Ярославская область, Угличский муниципальный округ, ... - Фото 1
    3-к кв. Ярославская область, Угличский муниципальный округ, ... - Фото 2
    3-комнатная квартира, общая площадь 60м², жилая 47м², кухня 5м²

    Арт.Продается ТРЁХКОМНАТНАЯ квартира, находящаяся по адресу: Угличский район, Отрадновское сельское поселение, посёлок Алтыново, д. 3., расстояние от г. Углич 8 км.Год постройки дома 1976.ОПИСАНИЕ:Квартира не угловая, очень теплая, светлая с прекрасным...
    • 60 м²
    • 3-ком
    • 5/5 эт.
    • панельный
    2 100 000 Р
    Агент
    +7 (980) Показать номер
    Посмотреть контакты
    1-к кв. Ярославская область, Ярославль ул. Блюхера, 86/9 (22.0 м) - Фото 1
    1-к кв. Ярославская область, Ярославль ул. Блюхера, 86/9 (22.0 м) - Фото 2
    1-комнатная квартира, общая площадь 22м², жилая 12м², кухня 5м²

    Предлагается к продаже уютная однокомнатная квартира в Дзержинском районе, расположенная на 2-м этаже 9-этажного панельного дома. Это светлое и тёплое жильё с окнами на солнечную сторону, готовое к комфортному проживанию. В квартире установлены современные...
    • 22 м²
    • 1-ком
    • 2/9 эт.
    • панельный
    2 000 000 Р
    Агент
    +7 (980) Показать номер
    Посмотреть контакты
    2-комнатная квартира, общая площадь 42м², жилая 37м², кухня 5м²

    Продается уютная 2-комнатная квартира в центре поселка. Полная готовность к проживанию Локация: Центр поселка. Вся инфраструктура в шаговой доступности: детский сад, Сбербанк, продуктовые магазины. Во дворе — современная детская площадка.Лучшая локация...
    • 42 м²
    • 2-ком
    • 3/5 эт.
    2 200 000 Р
    Агент
    +7 (966) Показать номер
    Посмотреть контакты
    2-к кв. Ярославская область, Переславль-Залесский муниципальный округ, ... - Фото 1
    2-к кв. Ярославская область, Переславль-Залесский муниципальный округ, ... - Фото 2
    2-комнатная квартира, общая площадь 49м², жилая 24м², кухня 8м²

    Продаётся отличная двухкомнатная квартира в районе с развитой инфраструктурой, с. Купанское 20 км от города Переславль - Залесский ( Золоток Кольцо России ), 140 км от МКАД Квартира: площадью 49,2 кв.м., расположенная на 2-м этаже, 2-х этажного кирпичного...
    • 49 м²
    • 2-ком
    • 2/2 эт.
    2 200 000 Р
    Агент
    +7 (980) Показать номер
    Посмотреть контакты

    Не нашли подходящего объявления?

    Оставьте заявку, и наши риэлторы подберут квартиру в районе Углича

    (0)