3 230 000 Р 39 930 $ или 34 590

Информация о квартире

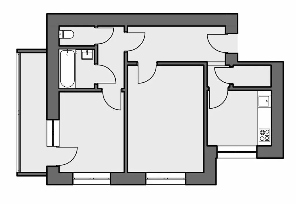
64 м2
Площадь
44 м2
Жилая
6 м2
Кухня
3
Комнаты
2
Этаж
5
Этажность
Развернуть
Агент
+7 (980) 661-86-10
Начать чат с агентом

3-к кв. Ярославская область, Тутаев Советская ул., 33 (64.0 м)

**Трёхкомнатная квартира в брежневке уютное пространство для жизни с потенциалом** Предлагается просторная **трёхкомнатная квартира** в добротной брежневке идеальный вариант для тех, кто ценит **надёжность планировки, хорошие метры и возможность создать современный интерьер**. **Ключевые особенности:** **Площадь** 64 кв. м** (жилая 44 кв. м, кухня 6 кв. м) **Раздельные комнаты** (17+ 17 + 10 кв. м) можно обустроить и спальню, и гостиную, и кабинет **Высота потолков** **2,65 м** (выше, чем в хрущёвках) ** лоджия** застекленна, с возможностью превратить в зону отдыха или зимний сад **Капитальные стены** можно делать перепланировку (с согласованием) **Тихий двор** без магистралей под окнами **Хорошая звукоизоляция** между квартирами **Почему стоит рассмотреть эту квартиру?** **Удобное расположение**ядом школы, детсады, магазины, остановки транспорта. **Стабильный дом** крепкие конструкции, проверенные временем. **Возможность модернизации** при желании можно сделать стильный ремонт под современные тренды (лофт, скандинавский стиль, неоклассика). **Выгодная цена** отличное сочетание метража и стоимости. Квартира продаётся перед вами чистый холст для воплощения дизайнерских идей * Этажи безопасные сделки с недвижимостью ** **100 гарантия безопасности** все сделки застрахованы. **Примем вашу недвижимость** в зачёт или на реализацию. **Покупка и продажа** в любом регионе России и за рубежом. **Новостройки БЕЗ первоначального взноса** начните жить в новой квартире уже сейчас **Звоните прямо сейчас ** Не упустите выгодные условия Код пользователя: 181440Номер в базе: 8477764

Читать полностью

    Для того, чтобы купить трехкомнатную квартиру по адресу: Тутаев, ул. Советская, 33, позвоните по телефону +7 (980) 661-86-10. Торопитесь! Объявление №30087588760 о продаже трехкомнатной квартиры опубликовано 28 октября 2025.

    Позвонить Написать
    3 230 000 Р39 930 $ или 34 590
    Агент
    +7 (980) 661-86-10
    Начать чат с агентом
    Похожие предложения
    2-к кв. Ярославская область, Тутаев ул. Липовая, 3 (44.6 м) - Фото 1
    2-к кв. Ярославская область, Тутаев ул. Липовая, 3 (44.6 м) - Фото 2
    2-комнатная квартира, общая площадь 44м², жилая 26м², кухня 9м²

    Внимание Возможна семейная ипотека под 6 на эту квартиру Цена снижена до 30 августа Продам уютную двухкомнатную квартиру с Индивидуальным газовым отоплением (ИГО). Третий этаж, общая площадь 44,6м2, кухня правильной формы 11м2, с выходом на лоджию,...
    • 44 м²
    • 2-ком
    • 3/4 эт.
    • кирпичный
    3 300 000 Р
    Агент
    +7 (915) Показать номер
    Посмотреть контакты
    1-к кв. Ярославская область, Тутаев ул. Розы Люксембург, 70 (41.1 м) - Фото 1
    1-к кв. Ярославская область, Тутаев ул. Розы Люксембург, 70 (41.1 м) - Фото 2
    1-комнатная квартира, общая площадь 41м², кухня 12м²

    Новый дом в Тутаеве, построенный в 2024 году, предлагает к продаже современную квартиру площадью 41.1 кв. м. Здание возведено с применением высококачественных керамических материалов, что обеспечивает высокий уровень тепло- и шумоизоляции. Квартира характеризуется...
    • 41 м²
    • 1-ком
    • 3/5 эт.
    3 299 000 Р
    Агент
    +7 (915) Показать номер
    Посмотреть контакты
    2-к кв. Ярославская область, Тутаев ул. Моторостроителей, 75 (48.1 м) - Фото 1
    2-к кв. Ярославская область, Тутаев ул. Моторостроителей, 75 (48.1 м) - Фото 2
    2-комнатная квартира, общая площадь 48м², кухня 10м²

    Продаётся прекрасная 2-комнатная квартира в городе Тутаев Косметический ремонт въезжайте и живите сразу Раздельные комнаты простор и удобство каждому члену семьи Совместный санузел практичное использование пространства Большая кухня место для...
    • 48 м²
    • 2-ком
    • 4/9 эт.
    • панельный
    3 100 000 Р
    Агент
    +7 (980) Показать номер
    Посмотреть контакты
    2-комнатная квартира: Тутаев, улица Моторостроителей, 75 (48.1 м) - Фото 1
    2-комнатная квартира: Тутаев, улица Моторостроителей, 75 (48.1 м) - Фото 2
    2-комнатная квартира, общая площадь 48м², жилая 33м², кухня 10м²

    Продаётся прекрасная 2-комнатная квартира в городе Тутаев Косметический ремонт – въезжайте и живите сразу Раздельные комнаты – простор и удобство каждому члену семьи Совместный санузел – практичное использование пространства Большая кухня – место...
    • 48 м²
    • 2-ком
    • 4/9 эт.
    3 100 000 Р
    Агент
    +7 (906) Показать номер
    Посмотреть контакты
    1-комнатная квартира: Тутаев, улица Розы Люксембург, 70 (41.1 м) - Фото 1
    1-комнатная квартира: Тутаев, улица Розы Люксембург, 70 (41.1 м) - Фото 2
    1-комнатная квартира, общая площадь 41м², жилая 24м², кухня 12м²

    Новый дом в Тутаеве, построенный в 2024 году, предлагает к продаже современную квартиру площадью 41.1 кв. м. Здание возведено с применением высококачественных керамических материалов, что обеспечивает высокий уровень тепло- и шумоизоляции. Квартира характеризуется...
    • 41 м²
    • 1-ком
    • 3/5 эт.
    3 299 000 Р
    Агент
    +7 (915) Показать номер
    Посмотреть контакты

    Не нашли подходящего объявления?

    Оставьте заявку, и наши риэлторы подберут квартиру в районе Тутаева

    (0)