64 900 000 Р 804 000 $ или 691 800

Состояние и оснащение

Количество этажей
3
Развернуть
Агент
+7 (905) 135-06-44
Начать чат с агентом

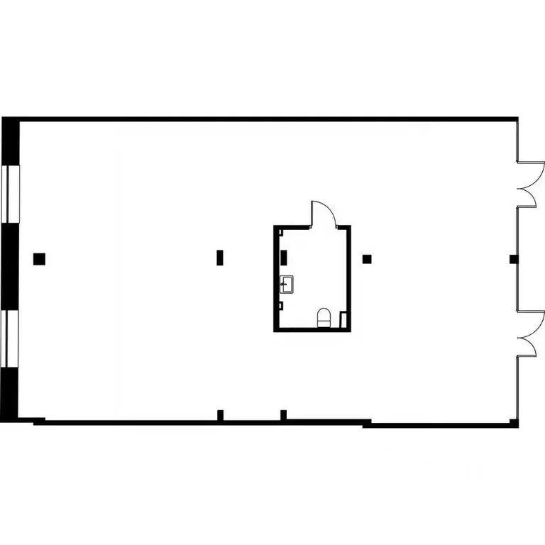
Помещение свободного назначения (1180 м)

id:2347. Коммерческое здание 1180.3 м2в самом центре города. Со своей погрузочно-разгрузочной зоной и парковкой. Площадь участка 7.75 сотАдрес: ул. Крестовая 98ЦенаПродается коммерческое помещение свободного назначения общей площадь 1180,3 кв.м.Находится в самом центре Рыбинска.Представляет собой , отдельно стоящее двух этажное здание, с цокольным этажом.С двумя входными группами с улицы Крестовой , и погрузо-разгрузочной со двора Луначарского для разгрузки транспорта.Выполнены капитальные работы по фасаду , установлены современные энергосберегающиеокна, обновлена приточно - вытяжнаявентиляционная система и коммуникации. Индивидуальная газовая котельная 2 котла Хопер 100А-94.7 кВт.Презентабельно оформлены лестничные марши.В помещениях высокие потолки 3.5, очень светло, большая площадь остекления много естественного свете, перегородки в большинстве не несущие и позволяют спланировать пространство на удобные для работы помещения.Установлены пожарная и охранная сигнализации.Так же парковочные места для вас и ваших клиентов.

Читать полностью
    Позвонить Написать
    64 900 000 Р804 000 $ или 691 800
    Агент
    +7 (905) 135-06-44
    Начать чат с агентом
    Похожие предложения
    Помещение свободного назначения в Татарстан, Казань ул. Академика ... - Фото 1
    Помещение свободного назначения в Татарстан, Казань ул. Академика ... - Фото 2
    Продается двухэтажное отдельностоящее здание площадью 257,6 кв.м на 1 линии улицы Глушко.В помещении:- Панорамное остекление- Электрическая мощность 150 кВТ- Высота потолков 2,73 м- Вывеска- Свой санузел на каждом этаже- Отопление и водоснабжение электрическое-...
    • 1/2 эт.
    65 000 000 Р
    Агент
    +7 (987) Показать номер
    Посмотреть контакты
    Продажа ПСН, м. Кунцевская, ул. Екатерины Будановой - Фото 1
    Продажа ПСН, м. Кунцевская, ул. Екатерины Будановой - Фото 2
    Продажа ПСН, м. Кунцевская, ул. Екатерины Будановой - Фото 3
    Продажа ПСН, м. Кунцевская, ул. Екатерины Будановой - Фото 4
    Продажа ПСН, м. Кунцевская, ул. Екатерины Будановой - Фото 5
    Продажа ПСН, м. Кунцевская, ул. Екатерины Будановой - Фото 6
    Продажа ПСН, м. Кунцевская, ул. Екатерины Будановой - Фото 7
    Продажа ПСН, м. Кунцевская, ул. Екатерины Будановой - Фото 8
    Продажа ПСН, м. Кунцевская, ул. Екатерины Будановой - Фото 9
    Продажа ПСН, м. Кунцевская, ул. Екатерины Будановой - Фото 10
    Продажа ПСН, м. Кунцевская, ул. Екатерины Будановой - Фото 11
    Продажа ПСН, м. Кунцевская, ул. Екатерины Будановой - Фото 12
    Продажа ПСН, м. Кунцевская, ул. Екатерины Будановой - Фото 13
    общая площадь 450.5м², полезная площадь 450.5м²

    Арендный бизнес. Продажа помещения свободного назначения в ЗАО, р-н Кунцево. Общая площадь помещения 450,5 м2. Помещение расположено на -1 этаже (подвал с окнами) жилого дома. В помещение ведет отдельный вход с улицы, планировка – кабинетная, полноценные...
    • 450.5 м²
    • -1-й эт.
    65 000 000 Р
    Агент
    +7 (903) Показать номер
    Посмотреть контакты
    Продается здание 1442.7 м2 - Фото 1
    Продается здание 1442.7 м2 - Фото 2
    Продается здание 1442.7 м2 - Фото 3
    Продается здание 1442.7 м2 - Фото 4
    Продается здание 1442.7 м2 - Фото 5
    Продается здание 1442.7 м2 - Фото 6
    полезная площадь 1442.7м²

    Аукцион по продаже имущественного комплекса, находящегося по адресу: (Краснодарский край, Краснодар, ул. Октябрьская, д. 57) Общая площадь: 0.09 га / 1442.7 м Начальная :,00 Дата окончания приема заявок: 04.05.2026 15: 00: 00 Дата проведения...
    • 1 442.7 м²
    • 4 этажа
    65 435 500 Р
    Агент
    +7 (495) Показать номер
    Посмотреть контакты
    Прямая продажа от застройщика - Фото 1
    Прямая продажа от застройщика - Фото 2
    Прямая продажа от застройщика - Фото 3
    Прямая продажа от застройщика - Фото 4
    Прямая продажа от застройщика - Фото 5
    Прямая продажа от застройщика - Фото 6
    Прямая продажа от застройщика - Фото 7
    Прямая продажа от застройщика - Фото 8
    Прямая продажа от застройщика - Фото 9
    полезная площадь 298.6м²

    Помещение под МЕДЦЕНТР от ЗАСТРОЙЩИКА! Нежилое помещение № 2.2, корпус 5.1, общей площадью 298,60 м2, первый этаж, 1 вход с улицы, 1 вход со двора. напротив муниципальный ДОО на 560 мест и Школа на 1500 мест. Помещение выходит на первую линию внутриквартального...
    • 298.6 м²
    • 1/2 эт.
    65 732 000 Р
    Агент
    +7 (495) Показать номер
    Посмотреть контакты
    Помещение свободного назначения в Санкт-Петербург Московский просп., ... - Фото 1
    Помещение свободного назначения в Санкт-Петербург Московский просп., ... - Фото 2
    МОСКО — проект уровня 4* на Московском проспекте, 115В, в Московском районе Санкт-Петербурга. Современное 10-этажное здание объединяется с объектом культурного наследия — кузовным цехом 1913 года. В исторической части разместятся бутики, ресторан, мини-маркет...
    • 1/3 эт.
    65 872 000 Р
    Агент
    +7 (939) Показать номер
    Посмотреть контакты

    Не нашли подходящего объявления?

    Оставьте заявку, и наши риэлторы подберут псн в районе Рыбинска

    (0)