4 600 000 Р 58 210 $ или 50 790

Информация о квартире

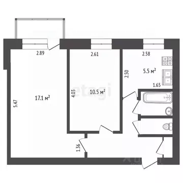
60 м2
Площадь
5 м2
Кухня
4
Комнаты
4
Этаж
5
Этажность

Дополнительная информация

Тип дома
блочный
Развернуть
Агент
+7 (910) 971-97-74
Начать чат с агентом

4-к кв. Ярославская область, Рыбинск Сельскохозяйственная ул., 22 ...

Продается просторная 4-комнатная квартира — идеальный вариант для большой семьи, готовый к ремонту мечты Продается просторная четырехкомнатная квартира в хорошем состоянии, под ремонт. Идеальный вариант для тех, кто хочет создать интерьер своей мечты с нуля — простор, свет и возможности для творчества Особенности квартиры:Комнаты: четыре просторные комнаты — достаточно места для всей семьи, детей или гостей.Этаж: 4-й — удобный, с хорошей вентиляцией и без проблем с нижними этажами.Состояние: частично выполнен косметический ремонт, поменяны трубы воды и канализации, установлена новая газовая колонка — квартира очень теплая, функциональная и готова к обновлению.Балкон: застеклен — дополнительное пространство для хранения или отдыха.Местоположение и инфраструктура:Расположение: дом в шаговой доступности от остановки общественного транспорта, магазинов — удобно добираться куда угодно.Близость к объектам: рядом детский сад, школа, МФЦ (для удобных государственных услуг), спортивные комплексы Олимп и Звезда — для активного образа жизни. Напротив дома большой парк — идеально для прогулок и отдыха на свежем воздухе.Сделка:Один взрослый собственник.Быстрый выход на сделку — без задержек и лишних хлопот.С компанией ЭТАЖИ Вы получите юридическое сопровождение сделки с выдачей гарантийного сертификата. Мы поможем Вам одобрить ипотеку на выгодных условиях, получить скидки по страхованию. Электронная регистрация прямо в офисе Добавьте объявление в избранное, чтобы не потерять ЗВОНИТЕ, чтобы задать вопросы и записывайтесь на просмотр. Код пользователя: 191976Номер в базе:

Читать полностью

    Для того, чтобы купить четырехкомнатную квартиру по адресу: Рыбинск, ул. Сельскохозяйственная, 22, позвоните по телефону +7 (910) 971-97-74. Торопитесь! Объявление №30091916713 о продаже четырехкомнатной квартиры опубликовано 2 дня назад.

    Позвонить Написать
    4 600 000 Р58 210 $ или 50 790
    Агент
    +7 (910) 971-97-74
    Начать чат с агентом
    Похожие предложения
    4-комнатная квартира: Рыбинск, Сельскохозяйственная улица, 22 (60.7 м) - Фото 1
    4-комнатная квартира: Рыбинск, Сельскохозяйственная улица, 22 (60.7 м) - Фото 2
    4-комнатная квартира, общая площадь 60м², жилая 50м², кухня 5м²

    Продается просторная 4-комнатная квартира — идеальный вариант для большой семьи, готовый к ремонту мечты Продается просторная четырехкомнатная квартира в хорошем состоянии, под ремонт. Идеальный вариант для тех, кто хочет создать интерьер своей мечты...
    • 60 м²
    • 4-ком
    • 4/5 эт.
    4 600 000 Р
    Агент
    +7 (966) Показать номер
    Посмотреть контакты
    3-к кв. Ярославская область, Рыбинск Западный п/р, ул. Новоселов, 7 ... - Фото 1
    3-к кв. Ярославская область, Рыбинск Западный п/р, ул. Новоселов, 7 ... - Фото 2
    3-комнатная квартира, общая площадь 61м², жилая 38м², кухня 8м²

    Уникальное предложение Продается теплая , светлая и уютная 3-х комнатная квартира , расположенная на 9-ом этаже 10-ти этажного панельного дома . (10 этаж технический )Общая площадь - 61,9 м кв. Кухня - 8,5 м кв. Комнаты 16, 13 и 9 м кв расположены на...
    • 61 м²
    • 3-ком
    • 9/9 эт.
    • панельный
    4 650 000 Р
    Агент
    +7 (915) Показать номер
    Посмотреть контакты
    3-комнатная квартира: Рыбинск, улица Радищева, 87 (56 м) - Фото 1
    3-комнатная квартира: Рыбинск, улица Радищева, 87 (56 м) - Фото 2
    3-комнатная квартира, общая площадь 56м², кухня 7м²

    Код объекта: 1933405. Уютная трёхкомнатная квартира в Рыбинске Адрес: Россия, Ярославская область, Рыбинск, улица Радищева, 87.Почему стоит рассмотреть эту квартиру?Удобное расположение: дом находится в районе с хорошо развитой инфраструктурой. Рядом...
    • 56 м²
    • 3-ком
    • 1/9 эт.
    4 690 000 Р
    Агент
    +7 (905) Показать номер
    Посмотреть контакты
    3-к кв. Ярославская область, Рыбинск ул. Академика Губкина, 3 (66.7 м) - Фото 1
    3-к кв. Ярославская область, Рыбинск ул. Академика Губкина, 3 (66.7 м) - Фото 2
    3-комнатная квартира, общая площадь 66м², жилая 32м², кухня 28м²

    Уникальный комфорт в спальном районе города - Ваша квартира мечты, включающая современные удобства, ждет Вас Общая информация:Тип: Трехкомнатная квартира (1/8 этаж).Дом: Кирпичный, построен в 1980 году.Площадь: 66.7 кв. м.Высота потолков: 2.5 м.Санузел:...
    • 66 м²
    • 3-ком
    • 1/9 эт.
    • кирпичный
    4 600 000 Р
    Агент
    +7 (980) Показать номер
    Посмотреть контакты
    3-комнатная квартира: Рыбинск, улица Яна Гуса, 4 (57 м) - Фото 1
    3-комнатная квартира: Рыбинск, улица Яна Гуса, 4 (57 м) - Фото 2
    3-комнатная квартира, общая площадь 57м², жилая 42м², кухня 7м²

    Код объекта: 1912893.Продаётся трехкомнатная квартира на седьмом этаже девяти этажного дома, с угловой лоджией Сан узел раздельный. Длинный и просторный коридор дополнительно можно поставить несколько шкафов купе, в комнаты выходят на разные стороны...
    • 57 м²
    • 3-ком
    • 7/9 эт.
    4 500 000 Р
    Агент
    +7 (905) Показать номер
    Посмотреть контакты

    Не нашли подходящего объявления?

    Оставьте заявку, и наши риэлторы подберут квартиру в районе Рыбинска

    (0)