Реализация объекта недвижимости приостановлена

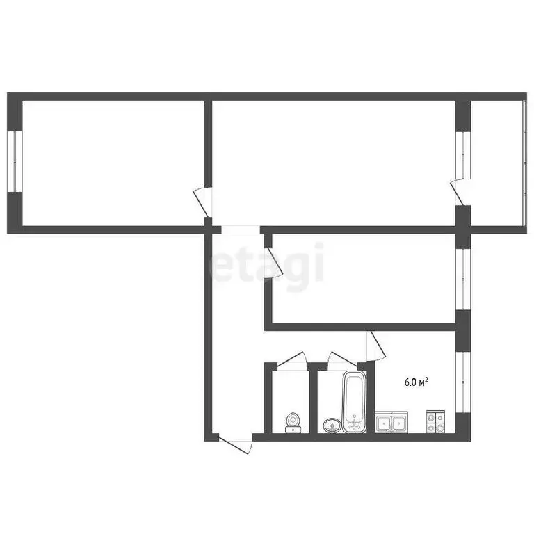
Информация о квартире

59.0 м2
Площадь
48.0 м2
Жилая
6.0 м2
Кухня
3
Комнаты
5
Этаж
5
Этажность
Развернуть

3-комнатная квартира: Рыбинск, Спортивная улица, 3 (59.1 м)

Уютная 3-комнатная квартира 59,1 м с ремонтом под ключРасположение:В районе с развитой инфраструктурой — все необходимое для комфортной жизни рядомУдобная транспортная доступность для поездок по городуХарактеристики квартиры:Общая площадь: 59,1 мЖилая площадь: 41,9 мЭтаж: 5 из 5 (верхний этаж с отличным видом)Комнаты: 3 (изолированные и смежные для гибкости планировки)Кухня: 6 мБалкон: балконВысота потолков: 2,6 мПреимущества:Отличный косметический ремонт — можно заезжать и жить сразу, без дополнительных затратНочная подсветка для уюта и безопасностиВ квартире остается кухня, большой диван, встроенный шкаф и тумба с подсветкой — частичная меблировка для комфортного стартаНизкие платежи по коммуналке, несмотря на просторную площадь — экономия на повседневных расходахВ подъезде выполнен косметический ремонт — чистота и порядок на входеФункциональная планировка с просторными комнатами — идеально для семьи или спокойного отдыхаХорошая инфраструктура района: магазины, школы, детские сады и другие удобства в шаговой доступностиИдеальный вариант для тех, кто ищет готовое жилье с низкими эксплуатационными расходами и уютной атмосферой Свяжитесь с нами для организации просмотра и получения дополнительной информации С компанией ЭТАЖИ Вы получите юридическое сопровождение сделки с выдачей гарантийного сертификата. Мы поможем Вам одобрить ипотеку на выгодных условиях, получить скидки по страхованию, а также бонусы от партнеров. Электронная регистрация прямо в офисе Добавьте объявление в избранное, чтобы не потерять ЗВОНИТЕ, чтобы задать вопросы и записывайтесь на просмотр. Код пользователя: 188433Номер в базе: 9815855

Читать полностью

    Реализация объекта недвижимости приостановлена

    Не нашли подходящего объявления?

    Оставьте заявку, и наши риэлторы подберут квартиру в районе Рыбинска

    (0)