Россия, Ярославская область, Рыбинский район, Рыбинск, ул. Февральская / ул. Рабкоровская / ул. Волочаевская

Реализация объекта недвижимости приостановлена

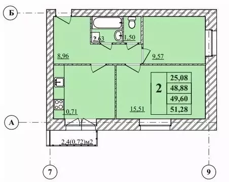
Информация о квартире

62.0 м2
Площадь
2
Комнаты
7
Этаж
8
Этажность
Развернуть

    Реализация объекта недвижимости приостановлена

    Не нашли подходящего объявления?

    Оставьте заявку, и наши риэлторы подберут квартиру в новостройке в районе Рыбинска

    (0)